- HOME
- マンションギャラリー一覧
- カーサ・デル・ソル小石川
カーサ・デル・ソル小石川
【 マンション 】IHシステムキッチンや三面鏡付独立洗面台等の設備が充実
| 最寄駅 | 所在地 | 間取り | 面積 | 築年月 |
|---|---|---|---|---|
丸の内線・茗荷谷駅 徒歩 6分 | 東京都文京区小石川5-19-22 | 1 R | 35.89㎡ | 2006年02月 |
この物件の募集は終了しています
茗荷谷駅徒歩6分の自然溢れる住宅街に位置するオール電化の賃貸マンション。3.3畳の納戸がある室内はIH2口システムキッチンや浴室暖房乾燥機、三面鏡付独立洗面台、温水洗浄便座等の設備が充実してます。
物件写真・間取り
物件概要
| 物件名 | カーサ・デル・ソル小石川 |
|---|
| 交通機関 | 丸の内線・茗荷谷駅 徒歩 6分 三田線・千石駅 徒歩 15分 有楽町線・護国寺駅 徒歩 17分 |
|---|
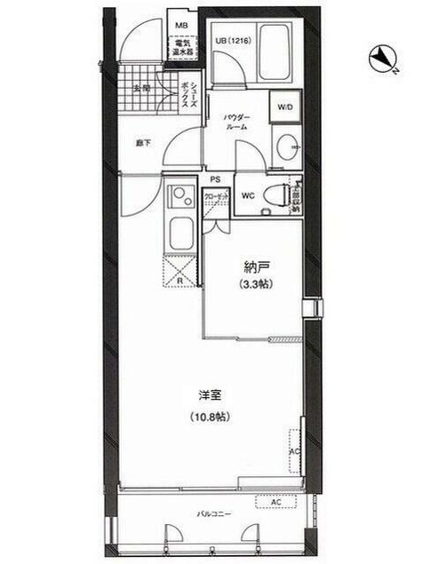
| 間取り詳細 | 洋室:10.8畳 S:3.3畳 |
|---|
| 建物構造 | RC |
|---|
| 所在階 / 階数 | 1階/7階建 |
|---|
| 主要採光面 | 北東側 |
|---|
| 契約期間 | 2年 |
|---|
| 引渡 | 5月中旬 |
|---|
| 現況 | 居住中 |
|---|
| 設備・条件 | エレベーター/24時間ゴミ出し可/宅配ボックス/敷地内ごみ置き場/駐輪場/角住戸/2面採光/オートロック/防犯カメラ/システムキッチン/2口コンロ/IHクッキングヒーター/バストイレ別/浴室乾燥機/温水洗浄便座/洗面所独立/三面鏡付洗面化粧台/24時間換気システム/オール電化/バルコニー/フローリング/全居室フローリング/室内洗濯置/クロゼット/シューズボックス/BS・CS/光ファイバー/TVインターホン/保証人不要/エアコン/通風良好 |
|---|
| 備考 | 文京区のお部屋探しはリガールにお任せください! |
|---|
| 取引態様 | 媒介 |
|---|
| 情報登録日 | 2021年04月15日 |
|---|
| 情報更新日 | 2021年04月15日 |
|---|


















