- HOME
- マンションギャラリー一覧
- パークリュクス市谷薬王寺
パークリュクス市谷薬王寺
【 マンション 】床暖房や食洗器付カウンターキッチン等の設備に優れた分譲賃貸マンション
| 最寄駅 | 所在地 | 間取り | 面積 | 築年月 |
|---|---|---|---|---|
大江戸線・牛込柳町駅 徒歩 6分 | 東京都新宿区市谷薬王寺町52 | 2 LDK | 55.61㎡ | 2011年07月 |
この物件の募集は終了しています
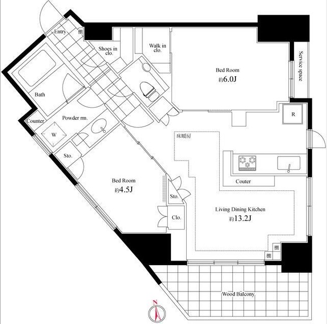
南向き、角部屋、複数面採光の2LDKはウォークインクローゼットとシューズインクローゼットがあり収納豊富。床暖房や食洗器・グリル付きの3口カウンターキッチン、追い炊き、独立洗面化粧台等の設備が充実。
物件写真・間取り
物件概要
| 物件名 | パークリュクス市谷薬王寺 |
|---|
| 交通機関 | 大江戸線・牛込柳町駅 徒歩 6分 都営新宿線・曙橋駅 徒歩 6分 丸の内線・四谷三丁目駅 徒歩 13分 |
|---|
| 間取り詳細 | LDK:13.2畳 洋室:6畳、4.5畳 |
|---|
| 建物構造 | RC |
|---|
| 所在階 / 階数 | 7階/13階建 |
|---|
| 主要採光面 | 南側 |
|---|
| 契約期間 | 2年 |
|---|
| 引渡 | 5月中旬 |
|---|
| 現況 | 居住中 |
|---|
| 設備・条件 | 分譲賃貸/高層階/エレベーター/24時間ゴミ出し可/宅配ボックス/敷地内ごみ置き場/駐輪場/南向き/角住戸/2面採光/3面採光/南面リビング/オートロック/ダブルロックキー/ディンプルキー/防犯カメラ/24時間緊急通報システム/システムキッチン/対面式キッチン/ガスレンジ付/3口以上コンロ/グリル付/食器洗乾燥機/都市ガス/バストイレ別/オートバス/追焚機能浴室/浴室乾燥機/温水洗浄便座/洗面所独立/シャワー付洗面台/24時間換気システム/床暖房/バルコニー/南面バルコニー/フローリング/全居室フローリング/室内洗濯置/クロゼット/ウォークインクロゼット/シューズボックス/シューズWIC/BS・CS/光ファイバー/TVインターホン/保証人不要/エアコン/エアコン3台/眺望良好/通風良好/陽当り良好 |
|---|
| 備考 | 高級物件情報が豊富なリガール株式会社 |
|---|
| 取引態様 | 媒介 |
|---|
| 情報登録日 | 2021年04月01日 |
|---|
| 情報更新日 | 2021年04月01日 |
|---|
























