- HOME
- マンションギャラリー一覧
- ハーモニーレジデンス池袋ウエストゲート
ハーモニーレジデンス池袋ウエストゲート
【 マンション 】【敷金、礼金0ヶ月】ペットの飼育が可能、最上階の角部屋
| 最寄駅 | 所在地 | 間取り | 面積 | 築年月 |
|---|---|---|---|---|
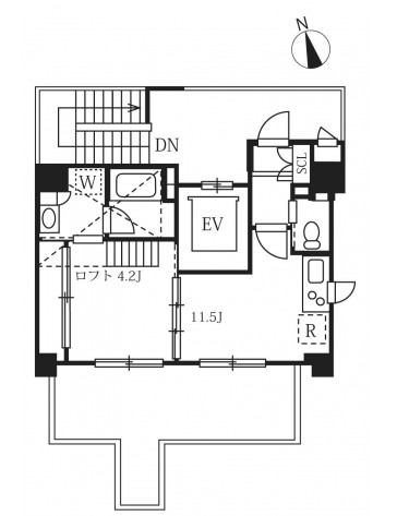
山手線・池袋駅 徒歩 9分 | 東京都豊島区池袋4-22-1 | 1 DK | 33.07㎡ | 2019年03月 |
この物件の募集は終了しています
最上階、南向き、角部屋、二面採光の風通しに優れた4.2畳のロフトがついた1DK。室内で小型犬、猫の飼育が可能。独立洗面台やシステムキッチン、浴室乾燥機、温水洗浄便座等の設備が充実した分譲マンション。
物件写真・間取り
物件概要
| 物件名 | ハーモニーレジデンス池袋ウエストゲート |
|---|
| 交通機関 | 山手線・池袋駅 徒歩 9分 東武東上線・北池袋駅 徒歩 12分 有楽町線・要町駅 徒歩 15分 |
|---|
| 建物構造 | RC |
|---|
| 所在階 / 階数 | 10階/10階建 |
|---|
| 主要採光面 | 南側 |
|---|
| 契約期間 | 2年 |
|---|
| 引渡 | 5月中旬 |
|---|
| 現況 | 居住中 |
|---|
| 設備・条件 | 分譲賃貸/高層階/最上階/エレベーター/24時間ゴミ出し可/宅配ボックス/敷地内ごみ置き場/築2年以内/駐輪場/バイク置場/南向き/角住戸/南面リビング/オートロック/ディンプルキー/防犯カメラ/ロフト/システムキッチン/ガスレンジ付/2口コンロ/バストイレ別/浴室乾燥機/温水洗浄便座/洗面所独立/シャワー付洗面台/24時間換気システム/バルコニー/南面バルコニー/フローリング/全居室フローリング/室内洗濯置/クロゼット/シューズボックス/光ファイバー/TVインターホン/ペット相談/保証人不要/エアコン/眺望良好/通風良好/陽当り良好 |
|---|
| 備考 | ペット飼育可(小型犬、猫1匹迄):礼金1ヶ月追加 |
|---|
| 取引態様 | 媒介 |
|---|
| 情報登録日 | 2021年03月20日 |
|---|
| 情報更新日 | 2021年03月20日 |
|---|












