- HOME
- マンションギャラリー一覧
- Billy House
Billy House
【 マンション 】追い炊きや3口システムキッチン等の設備に優れたデザイナーズマンション
| 最寄駅 | 所在地 | 間取り | 面積 | 築年月 |
|---|---|---|---|---|
山手線・池袋駅 徒歩 10分 | 東京都豊島区池袋3-16-13 | 1 LDK | 39.09㎡ | 2017年01月 |
この物件の募集は終了しています
南向き、角部屋、二面採光の風通しに優れた室内はグリル付きの3口システムキッチンや追い炊き、浴室乾燥機、独立洗面化粧台、エアコン2基、温水シャワートイレ、ライティングレール照明等の設備が充実してます。
物件写真・間取り
物件概要
| 物件名 | Billy House |
|---|
| 交通機関 | 山手線・池袋駅 徒歩 10分 有楽町線・要町駅 徒歩 5分 西武池袋線・椎名町駅 徒歩 16分 |
|---|
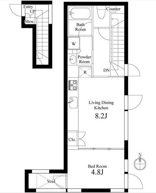
| 間取り詳細 | LDK:8.2畳 洋室:4.8畳 |
|---|
| 建物構造 | 鉄骨造 |
|---|
| 所在階 / 階数 | 3階/4階建 |
|---|
| 主要採光面 | 南側 |
|---|
| 契約期間 | 2年 |
|---|
| 引渡 | 即入居 |
|---|
| 現況 | 空 |
|---|
| 設備・条件 | デザイナーズ/宅配ボックス/敷地内ごみ置き場/南向き/角住戸/2面採光/3面採光/オートロック/ディンプルキー/防犯カメラ/システムキッチン/ガスレンジ付/3口以上コンロ/グリル付/都市ガス/バストイレ別/オートバス/追焚機能浴室/浴室乾燥機/温水洗浄便座/洗面所独立/24時間換気システム/フローリング/全居室フローリング/室内洗濯置/クロゼット/シューズボックス/光ファイバー/TVインターホン/即入居可/保証人不要/エアコン/エアコン2台/通風良好 |
|---|
| 備考 | デザイナーズマンションやリノベーションマンション等のお洒落な物件情報が豊富なリガール株式会社! |
|---|
| 取引態様 | 媒介 |
|---|
| 情報登録日 | 2021年03月06日 |
|---|
| 情報更新日 | 2021年03月06日 |
|---|


















