- HOME
- マンションギャラリー一覧
- インプレスト目白ヒルズ
インプレスト目白ヒルズ
【 マンション 】床暖房や3口カウンターキッチン、追い炊き等の設備が充実した分譲賃貸マンション
| 最寄駅 | 所在地 | 間取り | 面積 | 築年月 |
|---|---|---|---|---|
山手線・目白駅 徒歩 12分 | 東京都新宿区下落合4-26-2 | 1 LDK | 31.58㎡ | 2010年04月 |
この物件の募集は終了しています
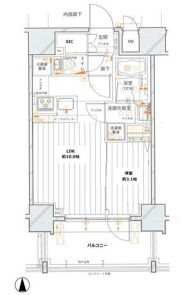
南向きの1LDKはリビングの床暖房やグリル付3口カウンターキッチン、追い炊きや浴室乾燥機付きのお風呂、シャワートイレ、三面鏡付独立洗面化粧台等の設備に優れ、シューズインクローゼットがあり収納も豊富です
物件写真・間取り
物件概要
| 物件名 | インプレスト目白ヒルズ |
|---|
| 交通機関 | 山手線・目白駅 徒歩 12分 西武池袋線・椎名町駅 徒歩 9分 西武新宿線・下落合駅 徒歩 13分 |
|---|
| 間取り詳細 | LDK:10畳 洋室:3.1畳 |
|---|
| 建物構造 | RC |
|---|
| 所在階 / 階数 | 3階/14階建 |
|---|
| 主要採光面 | 南側 |
|---|
| 契約期間 | 2年 |
|---|
| 引渡 | 即入居 |
|---|
| 現況 | 空 |
|---|
| 設備・条件 | 分譲賃貸/エレベーター/24時間ゴミ出し可/宅配ボックス/敷地内ごみ置き場/シャッター車庫/駐輪場/バイク置場/南向き/オートロック/ダブルロックキー/防犯カメラ/システムキッチン/対面式キッチン/ガスレンジ付/3口以上コンロ/グリル付/都市ガス/バストイレ別/オートバス/追焚機能浴室/浴室乾燥機/温水洗浄便座/洗面所独立/三面鏡付洗面化粧台/24時間換気システム/床暖房/バルコニー/南面バルコニー/フローリング/全居室フローリング/室内洗濯置/クロゼット/シューズボックス/シューズWIC/BS・CS/CATV/高速ネット対応/TVインターホン/即入居可/保証人不要/エアコン |
|---|
| 備考 | 分譲賃貸マンション情報が豊富なリガール株式会社で楽しいお部屋探し! |
|---|
| 取引態様 | 媒介 |
|---|
| 情報登録日 | 2021年03月01日 |
|---|
| 情報更新日 | 2021年03月01日 |
|---|













