- HOME
- マンションギャラリー一覧
- プレミスト西池袋
プレミスト西池袋
【 マンション 】床暖房や食洗器付き3口カウンターキッチン、追い炊き等の設備に優れた分譲マンション
| 最寄駅 | 所在地 | 間取り | 面積 | 築年月 |
|---|---|---|---|---|
副都心線・池袋駅 徒歩 5分 | 東京都豊島区西池袋5-17-13 | 2 LDK | 49.74㎡ | 2013年02月 |
この物件の募集は終了しています
リビングの床暖房やグリル付3口カウンターキッチン、追い炊きオートバス、浴室乾燥機、温水洗浄便座、独立洗面化粧台等の設備に優れた2面バルコニーが広がる角部屋。駐車場やバイク置場も敷地内にあります。
物件写真・間取り
物件概要
| 物件名 | プレミスト西池袋 |
|---|
| 交通機関 | 副都心線・池袋駅 徒歩 5分 有楽町線・要町駅 徒歩 3分 西武池袋線・椎名町駅 徒歩 14分 |
|---|
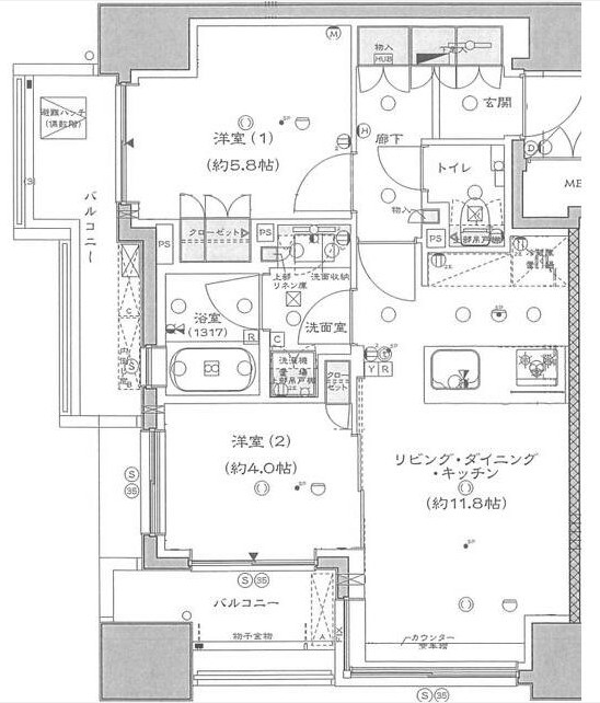
| 間取り詳細 | LDK:11.8畳 洋室:5.8畳、4畳 |
|---|
| 建物構造 | RC |
|---|
| 所在階 / 階数 | 10階/14階建 |
|---|
| 主要採光面 | 北側 |
|---|
| 契約期間 | 2年 |
|---|
| 引渡 | 即入居 |
|---|
| 現況 | 空 |
|---|
| 設備・条件 | 分譲賃貸/高層階/エレベーター/24時間ゴミ出し可/宅配ボックス/敷地内ごみ置き場/シャッター車庫/駐輪場/バイク置場/角住戸/2面採光/オートロック/防犯カメラ/システムキッチン/対面式キッチン/ガスレンジ付/3口以上コンロ/グリル付/食器洗乾燥機/都市ガス/バストイレ別/オートバス/追焚機能浴室/浴室乾燥機/温水洗浄便座/洗面所独立/三面鏡付洗面化粧台/シャワー付洗面台/24時間換気システム/床暖房/バルコニー/2面バルコニー/フローリング/全居室フローリング/複層ガラス/室内洗濯置/クロゼット/シューズボックス/BS・CS/CATV/光ファイバー/TVインターホン/保証人不要/エアコン/通風良好 |
|---|
| 備考 | 池袋のお部屋探しはリガールにお任せください! |
|---|
| 取引態様 | 媒介 |
|---|
| 情報登録日 | 2021年02月19日 |
|---|
| 情報更新日 | 2021年02月19日 |
|---|






