- HOME
- マンションギャラリー一覧
- グランスイート文京音羽ウエスタージュ
グランスイート文京音羽ウエスタージュ
【 マンション 】床暖房や浄水器付カウンターキッチン等の設備が充実した高級分譲
| 最寄駅 | 所在地 | 間取り | 面積 | 築年月 |
|---|---|---|---|---|
有楽町線・護国寺駅 徒歩 2分 | 東京都文京区音羽1-16-9 | 2 LDK | 55.87㎡ | 2012年02月 |
この物件の募集は終了しています
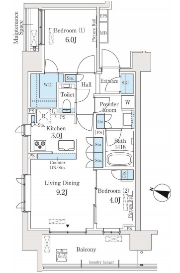
角部屋、二面採光の2LDKはウォークインクローゼットやシューズインクローゼットがあり収納豊富。浄水器付きのカウンターキッチンやリビングの床暖房、追い炊き、浴室乾燥機、独立洗面化粧台等の設備が充実。
物件写真・間取り
物件概要
| 物件名 | グランスイート文京音羽ウエスタージュ |
|---|
| 交通機関 | 有楽町線・護国寺駅 徒歩 2分 丸の内線・茗荷谷駅 徒歩 11分 有楽町線・江戸川橋駅 徒歩 14分 |
|---|
| 間取り詳細 | LDK:12.2畳 洋室:6畳、4畳 |
|---|
| 建物構造 | RC |
|---|
| 所在階 / 階数 | 7階/13階建 |
|---|
| 主要採光面 | 西側 |
|---|
| 契約期間 | 2年 |
|---|
| 引渡 | 4月下旬 |
|---|
| 現況 | 居住中 |
|---|
| 設備・条件 | 分譲賃貸/高層階/エレベーター/24時間ゴミ出し可/宅配ボックス/敷地内ごみ置き場/駐輪場/バイク置場/角住戸/2面採光/オートロック/ディンプルキー/防犯カメラ/LDK12畳以上/システムキッチン/対面式キッチン/ガスレンジ付/3口以上コンロ/グリル付/浄水器/都市ガス/バストイレ別/オートバス/追焚機能浴室/浴室乾燥機/温水洗浄便座/洗面所独立/三面鏡付洗面化粧台/シャワー付洗面台/24時間換気システム/床暖房/バルコニー/フローリング/全居室フローリング/室内洗濯置/クロゼット/ウォークインクロゼット/シューズボックス/シューズWIC/BS・CS/CATV/光ファイバー/TVインターホン/保証人不要/エアコン/通風良好 |
|---|
| 備考 | 分譲賃貸マンション情報が豊富なリガール株式会社で楽しいお部屋探し! |
|---|
| 取引態様 | 媒介 |
|---|
| 情報登録日 | 2021年02月15日 |
|---|
| 情報更新日 | 2021年02月15日 |
|---|







