- HOME
- マンションギャラリー一覧
- KAGURAZAKA TERRACE
KAGURAZAKA TERRACE
【 マンション 】浴室テレビやグリル付3口システムキッチン等の設備が充実した新築デザイナーズマンション
| 最寄駅 | 所在地 | 間取り | 面積 | 築年月 |
|---|---|---|---|---|
大江戸線・牛込神楽坂駅 徒歩 3分 | 東京都新宿区北町38-1 | 1 R | 31.25㎡ | 2021年02月 |
この物件の募集は終了しています
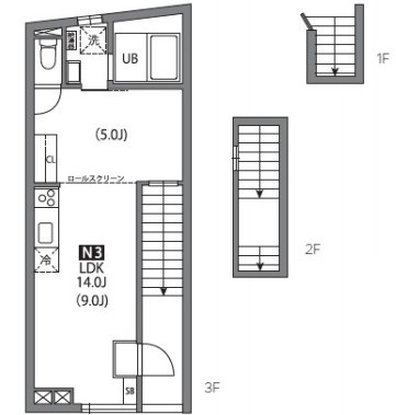
【仲介手数料無料】ロールスクリーンで9畳のリビングと5畳の洋室に分けることも可能な14畳の南向きのワンルーム。浴室テレビやグリル付き3口システムキッチン、インターネット利用料無料等の設備が充実してます
物件写真・間取り
物件概要
| 物件名 | KAGURAZAKA TERRACE |
|---|
| 交通機関 | 大江戸線・牛込神楽坂駅 徒歩 3分 東西線・神楽坂駅 徒歩 9分 有楽町線・飯田橋駅 徒歩 13分 |
|---|
| 間取り詳細 | 14畳 |
|---|
| 建物構造 | RC |
|---|
| 所在階 / 階数 | 3階/4階建 |
|---|
| 主要採光面 | 南側 |
|---|
| 契約期間 | 2年 |
|---|
| 引渡 | 3月上旬 |
|---|
| 現況 | 未完成 |
|---|
| 設備・条件 | デザイナーズ/外壁タイル張り/南向き/3面採光/オートロック/防犯カメラ/システムキッチン/ガスレンジ付/3口以上コンロ/グリル付/バストイレ別/浴室乾燥機/TV付浴室/温水洗浄便座/洗面所独立/24時間換気システム/ウッドデッキ/フローリング/室内洗濯置/クロゼット/シューズボックス/ネット使用料不要/TVインターホン/仲介手数料不要/保証人不要/エアコン |
|---|
| 備考 | 新築物件や築浅物件情報が豊富です! |
|---|
| 取引態様 | 媒介 |
|---|
| 情報登録日 | 2021年02月05日 |
|---|
| 情報更新日 | 2021年02月05日 |
|---|






