- HOME
- マンションギャラリー一覧
- ZOOM板橋大山
ZOOM板橋大山
【 マンション 】ペットの飼育が可能、インターネット利用無料の分譲デザイナーズ
| 最寄駅 | 所在地 | 間取り | 面積 | 築年月 |
|---|---|---|---|---|
東武東上線・大山駅 徒歩 8分 | 東京都板橋区熊野町36-8 | 1 K | 32.18㎡ | 2018年02月 |
この物件の募集は終了しています
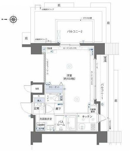
角部屋、二面バルコニーが広がる南向きの室内はシステムキッチンや追い炊き、浴室乾燥機、独立洗面台、温水洗浄便座等の設備が充実。ペットの飼育が可能、インターネットも無料で楽しめる分譲デザイナーズマンション
物件写真・間取り
物件概要
| 物件名 | ZOOM板橋大山 |
|---|
| 交通機関 | 東武東上線・大山駅 徒歩 8分 三田線・板橋区役所前駅 徒歩 15分 山手線・池袋駅 徒歩 22分 |
|---|
| 間取り詳細 | 10.8畳 |
|---|
| 建物構造 | RC |
|---|
| 所在階 / 階数 | 7階/8階建 |
|---|
| 主要採光面 | 南側 |
|---|
| 契約期間 | 2年 |
|---|
| 引渡 | 3月中旬 |
|---|
| 現況 | 居住中 |
|---|
| 設備・条件 | デザイナーズ/外壁タイル張り/分譲賃貸/高層階/エレベーター/24時間ゴミ出し可/宅配ボックス/敷地内ごみ置き場/駐輪場/バイク置場/南向き/角住戸/2面採光/オートロック/防犯カメラ/システムキッチン/ガスレンジ付/2口コンロ/都市ガス/バストイレ別/オートバス/追焚機能浴室/浴室乾燥機/温水洗浄便座/洗面所独立/洗面化粧台/24時間換気システム/バルコニー/2面バルコニー/フローリング/全居室フローリング/室内洗濯置/クロゼット/シューズボックス/CATV/ネット使用料不要/TVインターホン/ペット相談/保証人不要/エアコン/通風良 |
|---|
| 備考 | お洒落なデザイナーズ物件情報が豊富! |
|---|
| 取引態様 | 媒介 |
|---|
| 情報登録日 | 2021年02月02日 |
|---|
| 情報更新日 | 2021年02月02日 |
|---|


















