- HOME
- マンションギャラリー一覧
- トーシンフェニックス高田馬場弐番館
トーシンフェニックス高田馬場弐番館
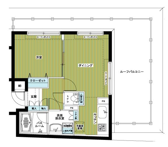
【 マンション 】L字型のルーフバルコニーが広がる追い炊き等の設備に優れた室内
| 最寄駅 | 所在地 | 間取り | 面積 | 築年月 |
|---|---|---|---|---|
山手線・高田馬場駅 徒歩 10分 | 東京都新宿区高田馬場4-37-11 | 1 DK | 34.25㎡ | 2007年03月 |
この物件の募集は終了しています
L字型のルーフバルコニーが広がる最上階、角部屋の風通しに優れた1LDK。2口ガスのシステムキッチンや追い炊き、浴室乾燥機付きのお風呂、シャンプードレッサー、温水洗浄便座等の室内設備も充実しております
物件写真・間取り
物件概要
| 物件名 | トーシンフェニックス高田馬場弐番館 |
|---|
| 交通機関 | 山手線・高田馬場駅 徒歩 10分 西武新宿線・下落合駅 徒歩 10分 東西線・落合駅 徒歩 15分 |
|---|
| 間取り詳細 | DK:6.8畳 洋室:5.4畳 |
|---|
| 建物構造 | RC |
|---|
| 所在階 / 階数 | 5階/5階建 |
|---|
| 主要採光面 | 北西側 |
|---|
| 契約期間 | 2年 |
|---|
| 引渡 | 3月上旬 |
|---|
| 現況 | 居住中 |
|---|
| 設備・条件 | 分譲賃貸/最上階/エレベーター/24時間ゴミ出し可/宅配ボックス/敷地内ごみ置き場/駐輪場/角住戸/2面採光/オートロック/防犯カメラ/システムキッチン/ガスレンジ付/2口コンロ/都市ガス/バストイレ別/追焚機能浴室/浴室乾燥機/温水洗浄便座/洗面所独立/シャワー付洗面台/24時間換気システム/バルコニー/ルーフバルコニー/L字型バルコニー/フローリング/全居室フローリング/室内洗濯置/クロゼット/シューズボックス/光ファイバー/TVインターホン/保証人不要/エアコン/眺望良好/通風良好 |
|---|
| 備考 | 分譲賃貸マンションをお探しの方はリガールにお任せください! |
|---|
| 取引態様 | 媒介 |
|---|
| 情報登録日 | 2021年01月24日 |
|---|
| 情報更新日 | 2021年01月24日 |
|---|


















