- HOME
- マンションギャラリー一覧
- セジョリ高田馬場
セジョリ高田馬場
【 マンション 】浴室テレビや追い炊き等の設備に優れたペット可分譲マンション
| 最寄駅 | 所在地 | 間取り | 面積 | 築年月 |
|---|---|---|---|---|
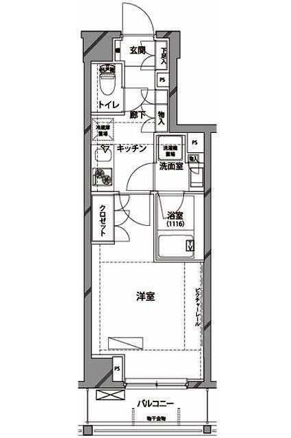
山手線・高田馬場 徒歩 6分 | 東京都新宿区高田馬場4-24-1 | 1 K | 26.43㎡ | 2012年10月 |
この物件の募集は終了しています
南東向きのタイル調のフローリングがお洒落な室内はペットの飼育が相談可能。浴室テレビや追い炊き、浴室乾燥機等の充実のバスルームやシステムキッチン、独立洗面化粧台、温水洗浄便座等の設備が整っております。
物件写真・間取り
物件概要
| 物件名 | セジョリ高田馬場 |
|---|
| 交通機関 | 山手線・高田馬場 徒歩 6分 副都心線・西早稲田駅 徒歩 12分 総武線・大久保駅 徒歩 15分 |
|---|
| 建物構造 | RC |
|---|
| 所在階 / 階数 | 5階/6階建 |
|---|
| 主要採光面 | 南東側 |
|---|
| 契約期間 | 2年 |
|---|
| 引渡 | 即入居 |
|---|
| 現況 | 空 |
|---|
| 設備・条件 | 分譲賃貸/エレベーター/24時間ゴミ出し可/宅配ボックス/敷地内ごみ置き場/駐輪場/東南向き/オートロック/防犯カメラ/システムキッチン/ガスレンジ付/2口コンロ/グリル付/都市ガス/バストイレ別/オートバス/追焚機能浴室/浴室乾燥機/TV付浴室/温水洗浄便座/洗面所独立/24時間換気システム/バルコニー/南面バルコニー/フローリング/室内洗濯置/クロゼット/シューズボックス/BS・CS/TVインターホン/即入居可/ペット相談/エアコン |
|---|
| 備考 | ペット可マンションをお探しの方はリガールにご相談ください! |
|---|
| 取引態様 | 媒介 |
|---|
| 情報登録日 | 2021年01月15日 |
|---|
| 情報更新日 | 2021年01月15日 |
|---|














