- HOME
- マンションギャラリー一覧
- グランバリュー河田町
グランバリュー河田町
【 マンション 】専用庭が広がるペットの飼育が可能なリノベーションマンション
| 最寄駅 | 所在地 | 間取り | 面積 | 築年月 |
|---|---|---|---|---|
大江戸線・若松河田駅 徒歩 5分 | 東京都新宿区河田町5-5 | 2 LDK | 62.63㎡ | 1987年07月 |
この物件の募集は終了しています
専用庭、インナーバルコニーがある角部屋、複数面採光の2LDK。リノベーションされた室内はテレビ、追い炊き、浴室乾燥機付きのお風呂や三面鏡付洗髪洗面化粧台、グリル付システムキッチン、琉球畳と設備が充実
物件写真・間取り
物件概要
| 物件名 | グランバリュー河田町 |
|---|
| 交通機関 | 大江戸線・若松河田駅 徒歩 5分 都営新宿線・曙橋駅 徒歩 7分 丸ノ内線・四谷三丁目駅 徒歩 13分 |
|---|
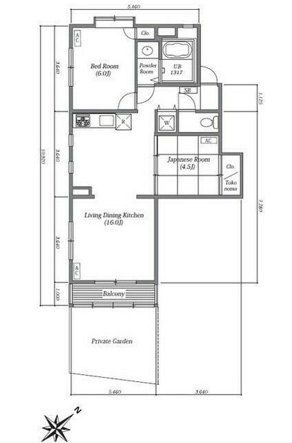
| 間取り詳細 | LDK:16畳 洋室:6畳 和室:4.5畳 |
|---|
| 建物構造 | RC |
|---|
| 所在階 / 階数 | 1階/3階建 |
|---|
| 主要採光面 | 南東側 |
|---|
| 契約期間 | 2年 |
|---|
| 引渡 | 即入居 |
|---|
| 現況 | 空 |
|---|
| 設備・条件 | デザイナーズ/外壁タイル張り/東南向き/角住戸/2面採光/3面採光/専用庭/LDK15畳以上/システムキッチン/ガスレンジ付/グリル付/都市ガス/バストイレ別/追焚機能浴室/浴室乾燥機/TV付浴室/温水洗浄便座/洗面所独立/三面鏡付洗面化粧台/シャワー付洗面台/24時間換気システム/バルコニー/インナーバルコニー/フローリング/琉球畳/室内洗濯置/クロゼット/シューズボックス/ネット使用料不要/TVインターホン/リノベーション/即入居可/ペット相談/ルームシェア相談/保証人不要/エアコン/通風良好 |
|---|
| 備考 | リノベーションマンションやデザイナーズマンションをお探しの方はリガールにご相談ください! |
|---|
| 取引態様 | 媒介 |
|---|
| 情報登録日 | 2021年01月06日 |
|---|
| 情報更新日 | 2021年01月06日 |
|---|

























