- HOME
- マンションギャラリー一覧
- ハーモニーレジデンス早稲田夏目坂
ハーモニーレジデンス早稲田夏目坂
【 マンション 】ペットの飼育が可能、独立洗面台や浴室乾燥機等の設備が充実
| 最寄駅 | 所在地 | 間取り | 面積 | 築年月 |
|---|---|---|---|---|
大江戸線・若松河田駅 徒歩 4分 | 東京都新宿区原町3-37-1 | 1 K | 25.79㎡ | 2018年02月 |
この物件の募集は終了しています
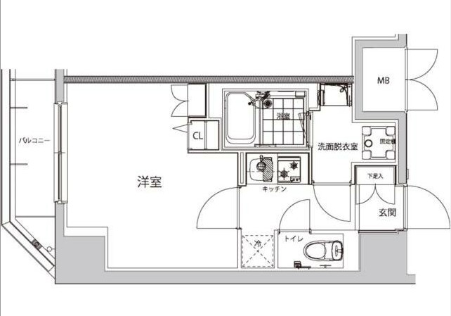
若松河田駅徒歩4分、早稲田駅徒歩5分、バイク置場も敷地内にある交通面に優れた2018年築分譲マンション。ペットの飼育が可能な室内はシステムキッチンや独立洗面台、浴室乾燥機、温水洗浄便座等の設備が充実
物件写真・間取り
物件概要
| 物件名 | ハーモニーレジデンス早稲田夏目坂 |
|---|
| 交通機関 | 大江戸線・若松河田駅 徒歩 4分 東西線・早稲田駅 徒歩 5分 東西線・神楽坂駅 徒歩 19分 |
|---|
| 建物構造 | RC |
|---|
| 所在階 / 階数 | 3階/13階建 |
|---|
| 主要採光面 | 南西側 |
|---|
| 契約期間 | 2年 |
|---|
| 引渡 | 即入居 |
|---|
| 現況 | 空 |
|---|
| 設備・条件 | 分譲賃貸/エレベーター/24時間ゴミ出し可/宅配ボックス/敷地内ごみ置き場/駐輪場/バイク置場/南西向き/オートロック/防犯カメラ/システムキッチン/ガスレンジ付/2口コンロ/バストイレ別/浴室乾燥機/温水洗浄便座/洗面所独立/24時間換気システム/バルコニー/フローリング/室内洗濯置/クロゼット/シューズボックス/BS・CS/光ファイバー/TVインターホン/ペット相談/保証人不要/エアコン |
|---|
| 備考 | お洒落なお部屋でお一人暮らしを始めたい方はリガールにご相談ください! |
|---|
| 取引態様 | 媒介 |
|---|
| 情報登録日 | 2020年12月26日 |
|---|
| 情報更新日 | 2020年12月26日 |
|---|
























