- HOME
- マンションギャラリー一覧
- ダイナシティ練馬桜台
ダイナシティ練馬桜台
【 マンション 】カウンターキッチンや追い炊き等の設備に優れたペット可分譲賃貸
| 最寄駅 | 所在地 | 間取り | 面積 | 築年月 |
|---|---|---|---|---|
西武池袋線・桜台駅 徒歩 3分 | 東京都練馬区豊玉上2-21-9 | 1 LDK | 36㎡ | 2007年08月 |
この物件の募集は終了しています
二面バルコニーが広がる風通しに優れた角部屋はペットの飼育やSOHO利用が相談可能。カウンターキッチンや追い炊き、浴室乾燥機付きのお風呂、三面鏡付独立洗面台、温水洗浄便座等の設備も充実の分譲マンション。
物件写真・間取り
物件概要
| 物件名 | ダイナシティ練馬桜台 |
|---|
| 交通機関 | 西武池袋線・桜台駅 徒歩 3分 大江戸線・練馬駅 徒歩 6分 西武有楽町線・新桜台駅 徒歩 11分 |
|---|
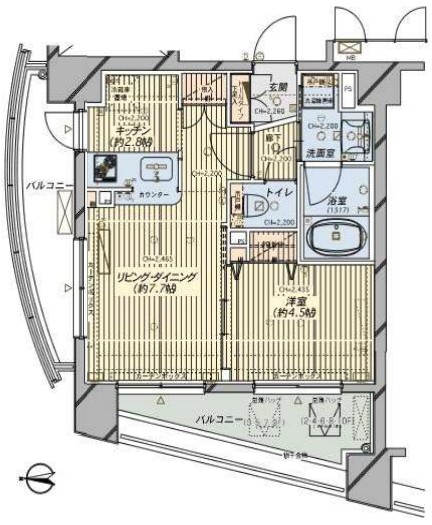
| 間取り詳細 | LDK:10.5畳 洋室:4.5畳 |
|---|
| 建物構造 | RC |
|---|
| 所在階 / 階数 | 9階/10階建 |
|---|
| 主要採光面 | 西側 |
|---|
| 契約期間 | 2年 |
|---|
| 引渡 | 1月中旬 |
|---|
| 現況 | 居住中 |
|---|
| 設備・条件 | 分譲賃貸/エレベーター/24時間ゴミ出し可/宅配ボックス/敷地内ごみ置き場/駐輪場/角住戸/2面採光/オートロック/防犯カメラ/システムキッチン/対面式キッチン/ガスレンジ付/2口コンロ/グリル付/都市ガス/バストイレ別/オートバス/追焚機能浴室/浴室乾燥機/温水洗浄便座/洗面所独立/洗面化粧台/三面鏡付洗面化粧台/24時間換気システム/バルコニー/2面バルコニー/フローリング/全居室フローリング/室内洗濯置/クロゼット/シューズボックス/CATV/光ファイバー/TVインターホン/ペット相談/事務所相談/エアコン/通風良好 |
|---|
| 備考 | 城北エリアのお部屋探しはリガールにお任せください! |
|---|
| 取引態様 | 媒介 |
|---|
| 情報登録日 | 2020年12月03日 |
|---|
| 情報更新日 | 2020年12月03日 |
|---|




















