- HOME
- マンションギャラリー一覧
- ジョイナス
ジョイナス
【 マンション 】追い炊きや食洗器付カウンターキッチン等の設備に優れた最上階
| 最寄駅 | 所在地 | 間取り | 面積 | 築年月 |
|---|---|---|---|---|
有楽町線・東池袋駅 徒歩 5分 | 東京都文京区大塚5-41-4 | 3 LDK | 102.8㎡ | 2007年03月 |
この物件の募集は終了しています
南西向き、メゾネットタイプの最上階の室内は食洗器やグリル付きの3口カウンターキッチンや追い炊き、三面鏡付洗髪洗面化粧台、温水洗浄便座、エアコン、モニター付インターフォン等の設備が充実しております。
物件写真・間取り
物件概要
| 物件名 | ジョイナス |
|---|
| 交通機関 | 有楽町線・東池袋駅 徒歩 5分 丸ノ内線・新大塚駅 徒歩 8分 副都心線・雑司が谷駅 徒歩 13分 |
|---|
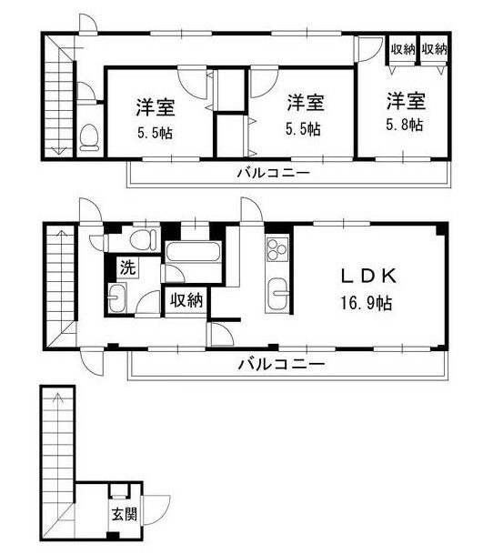
| 間取り詳細 | LDK:16.9畳 洋室:5.8畳、5.5畳、5.5畳 |
|---|
| 建物構造 | 鉄骨造 |
|---|
| 所在階 / 階数 | 2-3階/3階建 |
|---|
| 主要採光面 | 南西側 |
|---|
| 契約期間 | 2年 |
|---|
| 引渡 | 1月下旬 |
|---|
| 現況 | 居住中 |
|---|
| 設備・条件 | 最上階/駐輪場/南西向き/2面採光/LDK15畳以上/メゾネット/システムキッチン/対面式キッチン/3口以上コンロ/IHクッキングヒーター/グリル付/食器洗乾燥機/都市ガス/バストイレ別/オートバス/追焚機能浴室/温水洗浄便座/洗面所独立/洗面化粧台/三面鏡付洗面化粧台/シャワー付洗面台/24時間換気システム/バルコニー/フローリング/全居室フローリング/室内洗濯置/クロゼット/シューズボックス/BS/TVインターホン/保証人不要/エアコン/通風良好 |
|---|
| 備考 | ファミリー物件をお探しの方はリガールにお任せください! |
|---|
| 取引態様 | 媒介 |
|---|
| 情報登録日 | 2020年12月03日 |
|---|
| 情報更新日 | 2020年12月03日 |
|---|



















