- HOME
- マンションギャラリー一覧
- 日神パレステージ東新宿イーストフォート
日神パレステージ東新宿イーストフォート
【 マンション 】追い炊きや3口カウンターキッチン、独立洗面台等の設備が充実
| 最寄駅 | 所在地 | 間取り | 面積 | 築年月 |
|---|---|---|---|---|
副都心線・東新宿駅 徒歩 2分 | 東京都新宿区大久保2-6-15 | 2 LDK | 56.33㎡ | 2002年09月 |
この物件の募集は終了しています
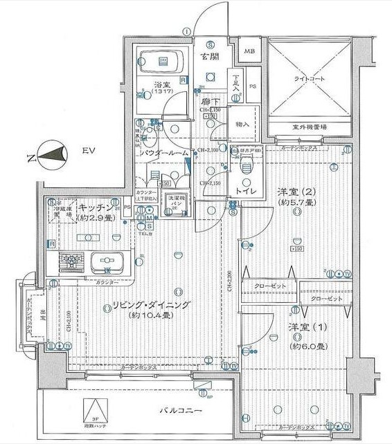
角部屋、二面採光の風通しに優れた2LDKはグリル付きの3口カウンターキッチンや追い炊き、浴室乾燥機付きのお風呂、三面鏡付独立洗面化粧台、脱臭機能付き温水洗浄便座、エアコン全室と設備が充実しております。
物件写真・間取り
物件概要
| 物件名 | 日神パレステージ東新宿イーストフォート |
|---|
| 交通機関 | 副都心線・東新宿駅 徒歩 2分 山手線・新大久保駅 徒歩 10分 副都心線・西早稲田駅 徒歩 7分 |
|---|
| 間取り詳細 | LDK:13.3畳 洋室:6畳、5.7畳 |
|---|
| 建物構造 | SRC |
|---|
| 所在階 / 階数 | 3階/14階建 |
|---|
| 主要採光面 | 西側 |
|---|
| 契約期間 | 2年 |
|---|
| 引渡 | 12月上旬 |
|---|
| 現況 | 居住中 |
|---|
| 設備・条件 | 分譲賃貸/エレベーター/24時間ゴミ出し可/宅配ボックス/敷地内ごみ置き場/駐輪場/角住戸/2面採光/オートロック/防犯カメラ/全居室6畳以上/システムキッチン/対面式キッチン/ガスレンジ付/3口以上コンロ/グリル付/都市ガス/バストイレ別/追焚機能浴室/浴室乾燥機/温水洗浄便座/洗面所独立/三面鏡付洗面化粧台/シャワー付洗面台/24時間換気システム/バルコニー/フローリング/全居室フローリング/室内洗濯置/クロゼット/シューズボックス/BS・CS/光ファイバー/TVインターホン/保証人不要/エアコン/エアコン3台/エアコン全室/通風良好 |
|---|
| 備考 | 分譲賃貸マンション情報が豊富なリガールで楽しいお部屋探しを! |
|---|
| 取引態様 | 媒介 |
|---|
| 情報登録日 | 2020年11月18日 |
|---|
| 情報更新日 | 2020年10月09日 |
|---|




















