- HOME
- マンションギャラリー一覧
- プレセダンヒルズ文京本駒込
プレセダンヒルズ文京本駒込
【 マンション 】【仲介手数料、敷金、礼金不要】インターネット利用料無料の新築マンション
| 最寄駅 | 所在地 | 間取り | 面積 | 築年月 |
|---|---|---|---|---|
山手線・駒込駅 徒歩 10分 | 東京都文京区本駒込3-31 | 1 K | 26.12㎡ | 2020年09月 |
この物件の募集は終了しています
【仲介手数料、敷金、礼金不要】インターネット利用料が無料の新築分譲マンション。南西向き、8畳の洋室が広がる室内は2口システムキッチンや浴室乾燥機、独立洗面台、温水洗浄便座等の設備が充実しております
物件写真・間取り
物件概要
| 物件名 | プレセダンヒルズ文京本駒込 |
|---|
| 交通機関 | 山手線・駒込駅 徒歩 10分 南北線・本駒込駅 徒歩 7分 三田線・千石駅 徒歩 8分 |
|---|
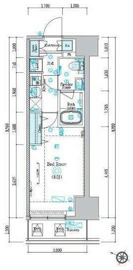
| 間取り詳細 | 8畳 |
|---|
| 建物構造 | RC |
|---|
| 所在階 / 階数 | 3階/15階建 |
|---|
| 主要採光面 | 南西側 |
|---|
| 契約期間 | 2年 |
|---|
| 引渡 | 即入居 |
|---|
| 現況 | 空 |
|---|
| 設備・条件 | 分譲賃貸/エレベーター/24時間ゴミ出し可/宅配ボックス/敷地内ごみ置き場/駐輪場/バイク置場/南西向き/オートロック/ダブルロックキー/ディンプルキー/防犯カメラ/システムキッチン/ガスレンジ付/2口コンロ/都市ガス/バストイレ別/浴室乾燥機/温水洗浄便座/洗面所独立/24時間換気システム/バルコニー/南面バルコニー/フローリング/室内洗濯置/クロゼット/シューズボックス/BS・CS/ネット使用料不要/TVインターホン/敷金・礼金不要/仲介手数料不要/保証人不要/エアコン |
|---|
| 備考 | 新築マンションをお探しの方はリガール株式会社にお任せください! |
|---|
| 取引態様 | 媒介 |
|---|
| 情報登録日 | 2020年09月18日 |
|---|
| 情報更新日 | 2020年09月18日 |
|---|






