- HOME
- マンションギャラリー一覧
- カーサアリビオ本駒込
カーサアリビオ本駒込
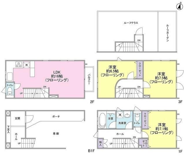
【 一戸建て 】屋上がルーフテラス、ルーフガーデンの駐車場付きタウンハウス
| 最寄駅 | 所在地 | 間取り | 面積 | 築年月 |
|---|---|---|---|---|
山手線・駒込駅 徒歩 10分 | 東京都文京区本駒込4-17-11 | 3 LDK | 103.56㎡ | 2003年07月 |
この物件の募集は終了しています
駐車場が無料で利用可能なタウンハウス。リビングに床暖房が入り、L字型の3口システムキッチンには食洗器、浄水器、グリル付き。追い炊きや独立洗面台等の設備に優れ、屋上はルーフテラス、ガーデンになってます。
物件写真・間取り
物件概要
| 物件名 | カーサアリビオ本駒込 |
|---|
| 交通機関 | 山手線・駒込駅 徒歩 10分 京浜東北線・田端駅 徒歩 11分 南北線・本駒込駅 徒歩 13分 |
|---|
| 間取り詳細 | LDK:16畳 洋室:7.5畳、7.1畳、6.5畳 |
|---|
| 建物構造 | RC |
|---|
| 所在階 / 階数 | 1-3階/3階建 |
|---|
| 主要採光面 | 東側 |
|---|
| 駐車場 | 付 |
|---|
| 駐車場料金 | 無料 |
|---|
| 契約期間 | 2年 |
|---|
| 引渡 | 即入居 |
|---|
| 現況 | 空 |
|---|
| 設備・条件 | 平面駐車場/駐車場1台無料/角住戸/2面採光/オートロック/LDK15畳以上/メゾネット/全居室6畳以上/システムキッチン/L字型キッチン/ガスレンジ付/3口以上コンロ/グリル付/食器洗乾燥機/浄水器/都市ガス/バストイレ別/オートバス/追焚機能浴室/温水洗浄便座/洗面所独立/24時間換気システム/床暖房/バルコニー/ルーフバルコニー/フローリング/全居室フローリング/室内洗濯置/クロゼット/シューズボックス/CATV/TVインターホン/即入居可/保証人不要/エアコン/通風良好 |
|---|
| 備考 | 駐車場付き戸建て情報が豊富! |
|---|
| 取引態様 | 媒介 |
|---|
| 情報登録日 | 2020年09月18日 |
|---|
| 情報更新日 | 2020年09月18日 |
|---|


















