- HOME
- マンションギャラリー一覧
- フレスコ文京茗荷谷EAST
フレスコ文京茗荷谷EAST
【 マンション 】3口カウンターキッチンや追い炊き等の設備に優れた角部屋
| 最寄駅 | 所在地 | 間取り | 面積 | 築年月 |
|---|---|---|---|---|
丸の内線・新大塚駅 徒歩 6分 | 東京都文京区大塚4-34-6 | 1 LDK | 40.1㎡ | 2017年12月 |
この物件の募集は終了しています
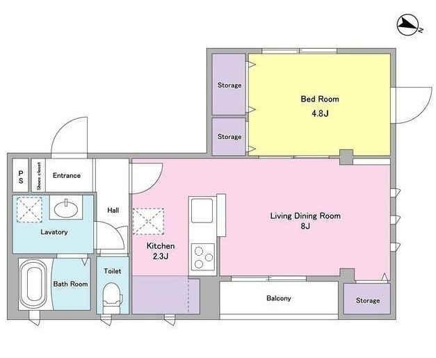
角部屋、三面採光の風通しに優れた1LDKはグリル付きのIH3口カウンターキッチンや追い炊き、浴室乾燥機、三面鏡付独立洗面化粧台、温水洗浄便座、室内物干し、玄関サポートチェア等の設備が充実してます。
物件写真・間取り
物件概要
| 物件名 | フレスコ文京茗荷谷EAST |
|---|
| 交通機関 | 丸の内線・新大塚駅 徒歩 6分 有楽町線・護国寺駅 徒歩 10分 丸の内線・茗荷谷駅 徒歩 10分 |
|---|
| 間取り詳細 | LDK:10.3畳 洋室:4.8畳 |
|---|
| 建物構造 | 鉄骨造 |
|---|
| 所在階 / 階数 | 2階/3階建 |
|---|
| 主要採光面 | 東側 |
|---|
| 契約期間 | 2年 |
|---|
| 引渡 | 11月上旬 |
|---|
| 現況 | 居住中 |
|---|
| 設備・条件 | 24時間ゴミ出し可/宅配ボックス/敷地内ごみ置き場/角住戸/2面採光/3面採光/オートロック/ダブルロックキー/ディンプルキー/防犯カメラ/システムキッチン/対面式キッチン/3口以上コンロ/IHクッキングヒーター/グリル付/都市ガス/バストイレ別/オートバス/追焚機能浴室/浴室乾燥機/温水洗浄便座/洗面所独立/三面鏡付洗面化粧台/シャワー付洗面台/24時間換気システム/バルコニー/フローリング/全居室フローリング/室内洗濯置/クロゼット/シューズボックス/BS・CS/光ファイバー/TVインターホン/保証人不要/エアコン/通風良好 |
|---|
| 備考 | 文京区のお部屋探しはリガール株式会社にお任せください! |
|---|
| 取引態様 | 媒介 |
|---|
| 情報登録日 | 2020年09月13日 |
|---|
| 情報更新日 | 2020年09月13日 |
|---|




















