- HOME
- マンションギャラリー一覧
- スパシエグランス早稲田
スパシエグランス早稲田
【 マンション 】ペットの飼育が可能、2011年築の分譲賃貸マンション
| 最寄駅 | 所在地 | 間取り | 面積 | 築年月 |
|---|---|---|---|---|
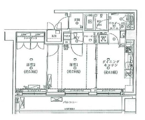
東西線・早稲田駅 徒歩 4分 | 東京都新宿区早稲田鶴巻町533-6 | 2 DK | 45.75㎡ | 2011年02月 |
この物件の募集は終了しています
小型犬、猫の飼育が可能な南西向きの2DKはグリル付きの3口システムキッチンや追い炊き、浴室乾燥機のあるお風呂、独立洗面台、温水洗浄便座等の設備に優れ、モニター付オートロックがあり女性も安心です。
物件写真・間取り
物件概要
| 物件名 | スパシエグランス早稲田 |
|---|
| 交通機関 | 東西線・早稲田駅 徒歩 4分 有楽町線・江戸川橋駅 徒歩 13分 大江戸線・牛込柳町駅 徒歩 13分 |
|---|
| 間取り詳細 | DK:6.1畳 洋室:7.8畳、5.3畳 |
|---|
| 建物構造 | RC |
|---|
| 所在階 / 階数 | 5階/8階建 |
|---|
| 主要採光面 | 南西側 |
|---|
| 契約期間 | 2年 |
|---|
| 引渡 | 10月中旬 |
|---|
| 現況 | 居住中 |
|---|
| 設備・条件 | 分譲賃貸/エレベーター/24時間ゴミ出し可/宅配ボックス/敷地内ごみ置き場/駐輪場/バイク置場/南西向き/オートロック/防犯カメラ/システムキッチン/ガスレンジ付/3口以上コンロ/グリル付/都市ガス/バストイレ別/オートバス/追焚機能浴室/浴室乾燥機/温水洗浄便座/洗面所独立/24時間換気システム/バルコニー/南面バルコニー/フローリング/全居室フローリング/室内洗濯置/クロゼット/シューズボックス/BS・CS/CATV/光ファイバー/TVインターホン/ペット相談/保証人不要/エアコン |
|---|
| 備考 | ペット可物件をお探しの方はリガール株式会社にお任せください! |
|---|
| 取引態様 | 媒介 |
|---|
| 情報登録日 | 2020年09月08日 |
|---|
| 情報更新日 | 2020年09月08日 |
|---|

















