- HOME
- マンションギャラリー一覧
- パレステージ西ヶ原
パレステージ西ヶ原
【 マンション 】ペットの飼育が可能、追い炊きや3口カウンターキッチン等の設備が充実した高級賃貸マンション
| 最寄駅 | 所在地 | 間取り | 面積 | 築年月 |
|---|---|---|---|---|
三田線・西巣鴨駅 徒歩 7分 | 東京都北区西ヶ原4-61-12 | 1 DK | 34.2㎡ | 2017年09月 |
この物件の募集は終了しています
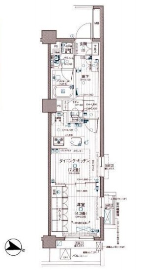
角部屋、二面採光の風通しに優れた室内はペットの飼育が可能。3口カウンターキッチンや追い炊き、浴室換気暖房乾燥機、独立洗面化粧台、温水洗浄便座等の設備に優れ、寝室の一面にクローゼットがあり収納豊富です。
物件写真・間取り
物件概要
| 物件名 | パレステージ西ヶ原 |
|---|
| 交通機関 | 三田線・西巣鴨駅 徒歩 7分 南北線・西ヶ原駅 徒歩 13分 山手線・巣鴨駅 徒歩 18分 |
|---|
| 間取り詳細 | DK:7.2畳 洋室:4.3畳 |
|---|
| 建物構造 | RC |
|---|
| 所在階 / 階数 | 2階/5階建 |
|---|
| 主要採光面 | 東側 |
|---|
| 契約期間 | 2年 |
|---|
| 引渡 | 10月下旬 |
|---|
| 現況 | 居住中 |
|---|
| 設備・条件 | 分譲賃貸/エレベーター/24時間ゴミ出し可/宅配ボックス/敷地内ごみ置き場/駐輪場/バイク置場/角住戸/2面採光/オートロック/ダブルロックキー/ディンプルキー/防犯カメラ/全居室洋室/システムキッチン/対面式キッチン/ガスレンジ付/3口以上コンロ/グリル付/都市ガス/バストイレ別/オートバス/追焚機能浴室/浴室乾燥機/温水洗浄便座/洗面所独立/三面鏡付洗面化粧台/シャワー付洗面台/24時間換気システム/バルコニー/フローリング/全居室フローリング/室内洗濯置/クロゼット/シューズボックス/BS・CS/CATV/光ファイバー/TVインターホン/ペット相談/保証人不要/エアコン/通風良好 |
|---|
| 備考 | 分譲マンションをお探しの方はリガール株式会社にお任せください! |
|---|
| 取引態様 | 媒介 |
|---|
| 情報登録日 | 2020年08月20日 |
|---|
| 情報更新日 | 2020年08月20日 |
|---|













