- HOME
- マンションギャラリー一覧
- リーガランド江戸川橋
リーガランド江戸川橋
【 マンション 】【仲介手数料、敷金、礼金不要】ペットの可のデザイナーズ賃貸
| 最寄駅 | 所在地 | 間取り | 面積 | 築年月 |
|---|---|---|---|---|
有楽町線・江戸川橋駅 徒歩 3分 | 東京都文京区水道2-10-1 | 2 LDK | 51.84㎡ | 2015年12月 |
この物件の募集は終了しています
【仲介手数料、敷金、礼金不要】ペットの飼育が可能、インターネットも無料で楽しめる最上階、メゾネットの角部屋。システムキッチンや浴室乾燥機、独立洗面台、温水洗浄便座等の設備も充実したデザイナーズ賃貸
物件写真・間取り
物件概要
| 物件名 | リーガランド江戸川橋 |
|---|
| 交通機関 | 有楽町線・江戸川橋駅 徒歩 3分 東西線・神楽坂駅 徒歩 13分 丸の内線・茗荷谷駅 徒歩 15分 |
|---|
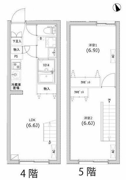
| 間取り詳細 | LD:6.6畳 洋室:6.9畳、6.6畳 |
|---|
| 建物構造 | RC |
|---|
| 所在階 / 階数 | 4-5階/5階建 |
|---|
| 主要採光面 | 南西側 |
|---|
| 契約期間 | 2年 |
|---|
| 引渡 | 10月上旬 |
|---|
| 現況 | 居住中 |
|---|
| 設備・条件 | デザイナーズ/外壁コンクリート/内装コンクリート/最上階/宅配ボックス/敷地内ごみ置き場/南西向き/角住戸/オートロック/防犯カメラ/メゾネット/システムキッチン/ガスレンジ付/2口コンロ/都市ガス/バストイレ別/浴室乾燥機/温水洗浄便座/洗面所独立/24時間換気システム/フローリング/全居室フローリング/室内洗濯置/クロゼット/シューズボックス/ネット使用料不要/TVインターホン/ペット相談/敷金不要/礼金不要/仲介手数料不要/保証人不要/エアコン |
|---|
| 備考 | 一都三県のデザイナーズマンションをお探しの方はリガール株式会社にお任せください! |
|---|
| 取引態様 | 媒介 |
|---|
| 情報登録日 | 2020年08月10日 |
|---|
| 情報更新日 | 2020年08月10日 |
|---|













