- HOME
- マンションギャラリー一覧
- コンフォリア東池袋WEST
コンフォリア東池袋WEST
【 マンション 】【礼金0ヶ月】ペットの飼育が可能、床暖房等の設備も充実
| 最寄駅 | 所在地 | 間取り | 面積 | 築年月 |
|---|---|---|---|---|
山手線・大塚駅 徒歩 9分 | 東京都豊島区東池袋1-22-21 | 1 LDK | 36.87㎡ | 2009年06月 |
この物件の募集は終了しています
【仲介手数料、礼金無料】角部屋、二面採光の風通しに優れた1LDKはペットの飼育が可能。システムキッチンや追い炊き、浴室乾燥機、独立洗面化粧台等の設備に優れ、シューズインクローゼットがあり収納豊富。
物件写真・間取り
物件概要
| 物件名 | コンフォリア東池袋WEST |
|---|
| 交通機関 | 山手線・大塚駅 徒歩 9分 山手線・池袋駅 徒歩 11分 有楽町線・東池袋駅 徒歩 11分 |
|---|
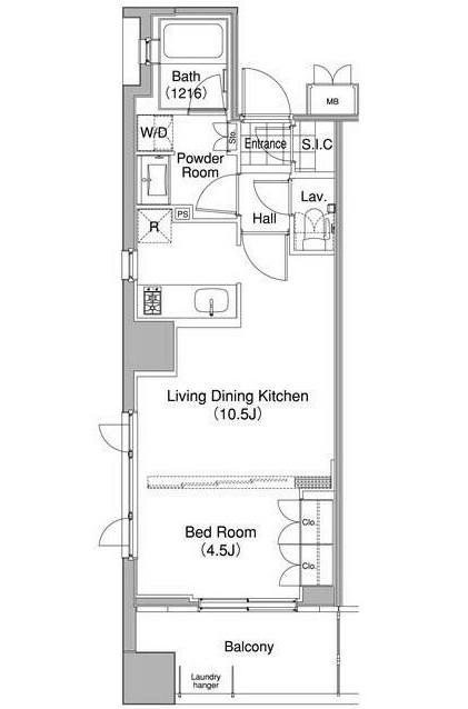
| 間取り詳細 | LDK:10.5畳 洋室:4.5畳 |
|---|
| 建物構造 | RC |
|---|
| 所在階 / 階数 | 8階/13階建 |
|---|
| 主要採光面 | 北東側 |
|---|
| 契約期間 | 2年 |
|---|
| 引渡 | 9月中旬 |
|---|
| 現況 | 居住中 |
|---|
| 設備・条件 | エレベーター/エレベーター2基/24時間ゴミ出し可/宅配ボックス/敷地内ごみ置き場/シャッター車庫/駐輪場/バイク置場/角住戸/2面採光/オートロック/ダブルロックキー/ディンプルキー/防犯カメラ/システムキッチン/ガスレンジ付/2口コンロ/都市ガス/バストイレ別/オートバス/追焚機能浴室/浴室乾燥機/温水洗浄便座/洗面所独立/24時間換気システム/バルコニー/フローリング/全居室フローリング/室内洗濯置/クロゼット/ウォークインクロゼット/シューズボックス/シューズWIC/BS・CS/CATV/TVインターホン/ペット相談/保証人不要/エアコン/エアコン2台/通風良好 |
|---|
| 備考 | 池袋のお部屋探しはリガールにお任せください! |
|---|
| 取引態様 | 媒介 |
|---|
| 情報登録日 | 2020年08月09日 |
|---|
| 情報更新日 | 2020年08月09日 |
|---|
















