- HOME
- マンションギャラリー一覧
- デュオ・スカーラ新大久保
デュオ・スカーラ新大久保
【 マンション 】ペットを飼育する方に嬉しい専用庭がある分譲賃貸マンション
| 最寄駅 | 所在地 | 間取り | 面積 | 築年月 |
|---|---|---|---|---|
山手線・新大久保駅 徒歩 4分 | 東京都新宿区大久保2-32-19 | 1 LDK | 36.8㎡ | 2003年11月 |
この物件の募集は終了しています
東向き、専用庭が広がるペット可、SOHO相談可能な1LDK。L字型のグリル付システムキッチンや浴室乾燥機、追炊きオートバス、三面鏡付独立洗面化粧台等の設備が整い、ウォークインクローゼットがあり収納豊富
物件写真・間取り
物件概要
| 物件名 | デュオ・スカーラ新大久保 |
|---|
| 交通機関 | 山手線・新大久保駅 徒歩 4分 副都心線・東新宿駅 徒歩 8分 中央線・大久保駅 徒歩 9分 |
|---|
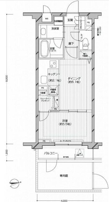
| 間取り詳細 | LDK:8.2畳 洋室:5.5畳 |
|---|
| 建物構造 | RC |
|---|
| 所在階 / 階数 | 1階/5階建 |
|---|
| 主要採光面 | 東側 |
|---|
| 契約期間 | 2年 |
|---|
| 引渡 | 9月中旬 |
|---|
| 現況 | 居住中 |
|---|
| 設備・条件 | 分譲賃貸/エレベーター/24時間ゴミ出し可/宅配ボックス/敷地内ごみ置き場/駐輪場/専用庭/オートロック/ダブルロックキー/ディンプルキー/防犯カメラ/システムキッチン/L字型キッチン/ガスレンジ付/2口コンロ/グリル付/都市ガス/バストイレ別/オートバス/追焚機能浴室/浴室乾燥機/温水洗浄便座/洗面所独立/三面鏡付洗面化粧台/24時間換気システム/バルコニー/フローリング/全居室フローリング/室内洗濯置/クロゼット/ウォークインクロゼット/シューズボックス/BS・CS/光ファイバー/TVインターホン/ペット相談/事務所相談/保証人不要/エアコン |
|---|
| 備考 | 分譲賃貸マンションをお探しの方はリガール株式会社にご相談ください!物件情報が豊富です! |
|---|
| 取引態様 | 媒介 |
|---|
| 情報登録日 | 2020年08月02日 |
|---|
| 情報更新日 | 2020年08月02日 |
|---|


















