- HOME
- マンションギャラリー一覧
- セントエルモ西早稲田
セントエルモ西早稲田
【 マンション 】2020年に内装、共用部共にリノベーション実施のマンション
| 最寄駅 | 所在地 | 間取り | 面積 | 築年月 |
|---|---|---|---|---|
副都心線・西早稲田駅 徒歩 1分 | 東京都新宿区高田馬場1-1-13 | 1 DK | 29.19㎡ | 1985年02月 |
この物件の募集は終了しています
2020年に内装、共用部をリノベーションした西早稲田駅徒歩1分、高田馬場駅徒歩7分の交通面に優れたマンション。グリル付きのシステムキッチンや浴室乾燥機、シャンプードレッサー、温水洗浄便座等の設備が充実
物件写真・間取り
物件概要
| 物件名 | セントエルモ西早稲田 |
|---|
| 交通機関 | 副都心線・西早稲田駅 徒歩 1分 山手線・高田馬場駅 徒歩 7分 大江戸線・東新宿駅 徒歩 12分 |
|---|
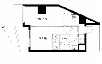
| 間取り詳細 | DK:5.4畳 洋室:6.5畳 |
|---|
| 建物構造 | SRC |
|---|
| 所在階 / 階数 | 8階/13階建 |
|---|
| 主要採光面 | 西側 |
|---|
| 契約期間 | 2年 |
|---|
| 引渡 | 即入居 |
|---|
| 現況 | 空 |
|---|
| 設備・条件 | エレベーター/24時間ゴミ出し可/宅配ボックス/敷地内ごみ置き場/駐輪場/オートロック/防犯カメラ/システムキッチン/ガスレンジ付/2口コンロ/グリル付/都市ガス/バストイレ別/浴室乾燥機/温水洗浄便座/洗面所独立/シャワー付洗面台/24時間換気システム/バルコニー/フローリング/全居室フローリング/室内洗濯置/クロゼット/シューズボックス/TVインターホン/リノベーション/即入居可/保証人不要/エアコン |
|---|
| 備考 | リノベーションマンションやデザイナーズマンションをお探しの方はリガール株式会社にお任せください! |
|---|
| 取引態様 | 媒介 |
|---|
| 情報登録日 | 2020年07月12日 |
|---|
| 情報更新日 | 2020年07月12日 |
|---|




















