- HOME
- マンションギャラリー一覧
- プラウド文京千駄木
プラウド文京千駄木
【 マンション 】食洗器や浄水器、床暖房、追い炊き等の設備に優れた分譲賃貸マンション
| 最寄駅 | 所在地 | 間取り | 面積 | 築年月 |
|---|---|---|---|---|
千代田線・千駄木駅 徒歩 5分 | 東京都文京区千駄木2-1-11 | 2 LDK | 54.13㎡ | 2017年11月 |
この物件の募集は終了しています
インターネット利用料が無料の角部屋はトランクルームやシューズインクローゼットがあり収納豊富。浄水器、食洗器付きの3口システムキッチンや追い炊き、浴室乾燥機、独立洗面化粧台、床暖房等の設備が充実してます
物件写真・間取り
物件概要
| 物件名 | プラウド文京千駄木 |
|---|
| 交通機関 | 千代田線・千駄木駅 徒歩 5分 千代田線・根津駅 徒歩 6分 南北線・東大前駅 徒歩 9分 |
|---|
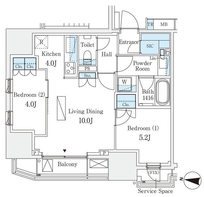
| 間取り詳細 | LDK:14畳 洋室:5.2畳、4畳 |
|---|
| 建物構造 | RC |
|---|
| 所在階 / 階数 | 5階/14階建 |
|---|
| 主要採光面 | 西側 |
|---|
| 契約期間 | 2年 |
|---|
| 引渡 | 7月下旬 |
|---|
| 現況 | 居住中 |
|---|
| 設備・条件 | 分譲賃貸/エレベーター/24時間ゴミ出し可/宅配ボックス/敷地内ごみ置き場/駐輪場/角住戸/2面採光/オートロック/防犯カメラ/セキュリティ会社加入済/LDK12畳以上/システムキッチン/ガスレンジ付/3口以上コンロ/グリル付/食器洗乾燥機/浄水器/都市ガス/バストイレ別/オートバス/追焚機能浴室/浴室乾燥機/温水洗浄便座/洗面所独立/24時間換気システム/床暖房/バルコニー/フローリング/全居室フローリング/室内洗濯置/クロゼット/シューズボックス/シューズWIC/トランクルーム/CATV/ネット使用料不要/光ファイバー/TVインターホン/保証人不要/エアコン/通風良好 |
|---|
| 備考 | 高級物件をお探しの方はリガール株式会社にお任せください! |
|---|
| 取引態様 | 媒介 |
|---|
| 情報登録日 | 2020年06月30日 |
|---|
| 情報更新日 | 2020年06月30日 |
|---|







