- HOME
- マンションギャラリー一覧
- リブリ・アカデミー
リブリ・アカデミー
【 マンション 】セコムセキュリティ、独立洗面化粧台、独立洗面台等の設備が充実
| 最寄駅 | 所在地 | 間取り | 面積 | 築年月 |
|---|---|---|---|---|
三田線・白山駅 徒歩 8分 | 東京都文京区白山1-5-8 | 1 K | 26.08㎡ | 2012年09月 |
この物件の募集は終了しています
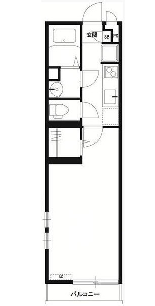
角部屋、二面採光の風通しに優れた室内はウォークインクローゼットがあり収納豊富。システムキッチンや浴室乾燥機、独立洗面台、温水洗浄便座等の設備に優れ、セコムセキュリティやオートロック等の防犯設備も充実
物件写真・間取り
物件概要
| 物件名 | リブリ・アカデミー |
|---|
| 交通機関 | 三田線・白山駅 徒歩 8分 大江戸線・春日駅 徒歩 9分 南北線・東大前駅 徒歩 10分 |
|---|
| 間取り詳細 | 8.4畳 |
|---|
| 建物構造 | 鉄骨造 |
|---|
| 所在階 / 階数 | 3階/3階建 |
|---|
| 主要採光面 | 西側 |
|---|
| 契約期間 | 2年 |
|---|
| 引渡 | 7月中旬 |
|---|
| 現況 | 居住中 |
|---|
| 設備・条件 | 駐輪場/角住戸/2面採光/オートロック/ダブルロックキー/セキュリティ会社加入済/システムキッチン/ガスレンジ付/2口コンロ/バストイレ別/浴室乾燥機/温水洗浄便座/洗面所独立/24時間換気システム/バルコニー/フローリング/室内洗濯置/クロゼット/ウォークインクロゼット/シューズボックス/BS/TVインターホン/保証人不要/エアコン/通風良好 |
|---|
| 備考 | 築浅物件をお探しの方はリガール株式会社にお任せください! |
|---|
| 取引態様 | 媒介 |
|---|
| 情報登録日 | 2020年06月21日 |
|---|
| 情報更新日 | 2020年06月21日 |
|---|


















