- HOME
- マンションギャラリー一覧
- スクエアガーデン池袋
スクエアガーデン池袋
【 マンション 】池袋駅徒歩5分、駐車場が敷地内にあるデザイナーズマンション
| 最寄駅 | 所在地 | 間取り | 面積 | 築年月 |
|---|---|---|---|---|
山手線・池袋駅 徒歩 5分 | 東京都豊島区南池袋1-15-23 | 1 LDK | 51.24㎡ | 2015年12月 |
この物件の募集は終了しています
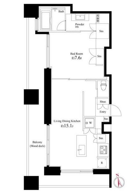
| 南側、西側にL字型バルコニーが広がる大きな窓が特徴的な1LDK。眺望を楽しめる追い炊きオートバスや独立洗面台、3口IHのカウンターキッチン、ビルトインエアコン、ダウンライト等の設備も充実しております。 |
物件写真・間取り
物件概要
| 物件名 | スクエアガーデン池袋 |
|---|
| 交通機関 | 山手線・池袋駅 徒歩 5分 山手線・目白駅 徒歩 6分 副都心線・雑司が谷駅 徒歩 10分 |
|---|
| 間取り詳細 | LDK:15.1畳 洋室:7.6畳 |
|---|
| 建物構造 | RC |
|---|
| 所在階 / 階数 | 10階/11階建 |
|---|
| 主要採光面 | 南西側 |
|---|
| 駐車場 | 空有 |
|---|
| 駐車場料金 | 33,000円 |
|---|
| 契約期間 | 2年 |
|---|
| 引渡 | 7月下旬 |
|---|
| 現況 | 居住中 |
|---|
| 設備・条件 | デザイナーズ/外壁タイル張り/高層階/エレベーター/24時間ゴミ出し可/宅配ボックス/敷地内ごみ置き場/築5年以内/平面駐車場/駐輪場/南西向き/角住戸/2面採光/オートロック/ダブルロックキー/ディンプルキー/防犯カメラ/LDK15畳以上/全居室洋室/システムキッチン/対面式キッチン/3口以上コンロ/IHクッキングヒーター/グリル付/都市ガス/バストイレ別/脱衣所/オートバス/追焚機能浴室/温水洗浄便座/洗面所独立/洗面化粧台/24時間換気システム/バルコニー/L字型バルコニー/南面バルコニー/フローリング/全居室フローリング/室内洗濯置/クロゼット/シューズボックス/BS・CS/BS/CS/CATV/光ファイバー/TVインターホン/保証人不要/エアコン/エアコン2台/通風良好 |
|---|
| 備考 | お洒落なデザイナーズマンションをお探しの方はリガール株式会社にお任せください! |
|---|
| 取引態様 | 媒介 |
|---|
| 情報登録日 | 2020年06月02日 |
|---|
| 情報更新日 | 2020年06月02日 |
|---|
















