- HOME
- マンションギャラリー一覧
- デュオ・スカーラ古河庭園
デュオ・スカーラ古河庭園
【 マンション 】インターネット利用料無料、ペット可、楽器可の分譲マンション
| 最寄駅 | 所在地 | 間取り | 面積 | 築年月 |
|---|---|---|---|---|
南北線・西ヶ原駅 徒歩 7分 | 東京都北区西ヶ原3-65-16 | 1 LDK | 41.62㎡ | 2003年08月 |
この物件の募集は終了しています
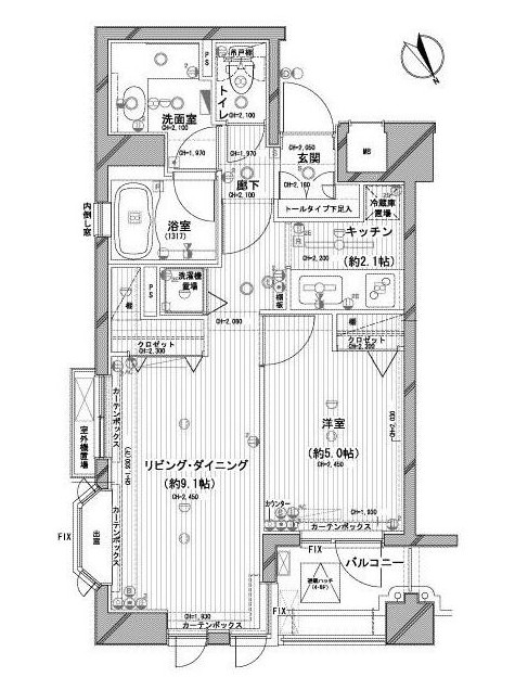
角部屋、二面採光の1LDKはペットの飼育や楽器の演奏、SOHO利用が相談可能。L字型の三面鏡付独立洗面化粧台や追い炊き、浴室乾燥機、温水洗浄便座、グリル付きシステムキッチン等の設備が充実しております。
物件写真・間取り
物件概要
| 物件名 | デュオ・スカーラ古河庭園 |
|---|
| 交通機関 | 南北線・西ヶ原駅 徒歩 7分 山手線・駒込駅 徒歩 11分 京浜東北線・上中里駅 徒歩 11分 |
|---|
| 間取り詳細 | LDK:11.2畳 洋室:5畳 |
|---|
| 建物構造 | RC |
|---|
| 所在階 / 階数 | 4階/8階建 |
|---|
| 主要採光面 | 北東側 |
|---|
| 契約期間 | 2年 |
|---|
| 引渡 | 即入居 |
|---|
| 現況 | 空 |
|---|
| 設備・条件 | 分譲賃貸/エレベーター/24時間ゴミ出し可/宅配ボックス/敷地内ごみ置き場/駐輪場/角住戸/2面採光/オートロック/ダブルロックキー/ディンプルキー/防犯カメラ/システムキッチン/ガスレンジ付/2口コンロ/グリル付/都市ガス/バストイレ別/オートバス/追焚機能浴室/浴室乾燥機/温水洗浄便座/洗面所独立/三面鏡付洗面化粧台/24時間換気システム/バルコニー/フローリング/全居室フローリング/室内洗濯置/クロゼット/シューズボックス/BS・CS/ネット使用料不要/TVインターホン/ペット相談/事務所相談/楽器相談/保証人不要/エアコン/通風良好 |
|---|
| 備考 | 分譲マンション情報が豊富なリガール株式会社で楽しいお部屋探しをはじめましょう! |
|---|
| 取引態様 | 媒介 |
|---|
| 情報登録日 | 2020年04月28日 |
|---|
| 情報更新日 | 2020年04月28日 |
|---|




















