- HOME
- マンションギャラリー一覧
- エクサム高田馬場
エクサム高田馬場
【 マンション 】コンクリート打ち放しの2016年築デザイナーズマンション
| 最寄駅 | 所在地 | 間取り | 面積 | 築年月 |
|---|---|---|---|---|
山手線・高田馬場駅 徒歩 9分 | 東京都新宿区下落合1-11-2 | 1 DK | 30.16㎡ | 2016年11月 |
この物件の募集は終了しています
角部屋、二面採光の風通しに優れた室内はコンクリート打ちっぱなしの壁をスポットライト照明が照らします。独立洗面台や浴室乾燥機、2口システムキッチン、ウォークインクローゼット等の設備も充実したデザイナーズ
物件写真・間取り
物件概要
| 物件名 | エクサム高田馬場 |
|---|
| 交通機関 | 山手線・高田馬場駅 徒歩 9分 西武新宿線・下落合駅 徒歩 4分 大江戸線・中井駅 徒歩 14分 |
|---|
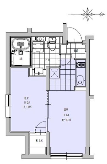
| 間取り詳細 | DK:7.6畳 洋室:5畳 |
|---|
| 建物構造 | RC |
|---|
| 所在階 / 階数 | 4階/5階建 |
|---|
| 主要採光面 | 東側 |
|---|
| 契約期間 | 2年 |
|---|
| 引渡 | 5月中旬 |
|---|
| 現況 | 空 |
|---|
| 設備・条件 | デザイナーズ/内装コンクリート/エレベーター/宅配ボックス/敷地内ごみ置き場/角住戸/2面採光/オートロック/防犯カメラ/システムキッチン/ガスレンジ付/2口コンロ/都市ガス/バストイレ別/浴室乾燥機/温水洗浄便座/洗面所独立/24時間換気システム/バルコニー/フローリング/室内洗濯置/クロゼット/ウォークインクロゼット/シューズボックス/BS・CS/光ファイバー/TVインターホン/保証人不要/エアコン/眺望良好/通風良好 |
|---|
| 備考 | デザイナーズマンションやリノベーションマンションをお探しの方はリガール株式会社にご相談ください! |
|---|
| 取引態様 | 媒介 |
|---|
| 情報登録日 | 2020年04月16日 |
|---|
| 情報更新日 | 2020年04月16日 |
|---|









