- HOME
- マンションギャラリー一覧
- パークウェル文京千石
パークウェル文京千石
【 マンション 】グリル付3口システムキッチンや追炊き、独立洗面台等の充実設備
| 最寄駅 | 所在地 | 間取り | 面積 | 築年月 |
|---|---|---|---|---|
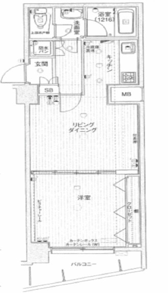
三田線・千石駅 徒歩 8分 | 東京都文京区千石2-20-12 | 1 LDK | 38.2㎡ | 2005年11月 |
この物件の募集は終了しています
南東向きの収納豊富な1LDKはグリル付きの3口システムキッチンや追い炊き、浴室乾燥機付きのお風呂、洗髪洗面化粧台、温水洗浄便座等の設備が充実。宅配ボックスや無料の駐輪場等の共用部も充実の分譲賃貸です。
物件写真・間取り
物件概要
| 物件名 | パークウェル文京千石 |
|---|
| 交通機関 | 三田線・千石駅 徒歩 8分 丸の内線・茗荷谷駅 徒歩 14分 山手線・巣鴨駅 徒歩 16分 |
|---|
| 建物構造 | RC |
|---|
| 所在階 / 階数 | 1階/6階建 |
|---|
| 主要採光面 | 南東側 |
|---|
| 契約期間 | 2年 |
|---|
| 引渡 | 即入居 |
|---|
| 現況 | 空 |
|---|
| 設備・条件 | 分譲賃貸/エレベーター/24時間ゴミ出し可/宅配ボックス/敷地内ごみ置き場/駐輪場/東南向き/オートロック/ダブルロックキー/ディンプルキー/防犯カメラ/システムキッチン/ガスレンジ付/3口以上コンロ/グリル付/都市ガス/バストイレ別/オートバス/追焚機能浴室/浴室乾燥機/温水洗浄便座/洗面所独立/シャワー付洗面台/24時間換気システム/バルコニー/南面バルコニー/フローリング/全居室フローリング/室内洗濯置/クロゼット/シューズボックス/CATV/光ファイバー/TVインターホン/即入居可/保証人不要/エアコン |
|---|
| 備考 | 文京区のお部屋探しはリガール株式会社にお任せください! |
|---|
| 取引態様 | 媒介 |
|---|
| 情報登録日 | 2020年04月16日 |
|---|
| 情報更新日 | 2020年04月16日 |
|---|




















