- HOME
- マンションギャラリー一覧
- シティタワー池袋ウエストゲート
シティタワー池袋ウエストゲート
【 マンション 】コンシェルジュサービスのある34階建て分譲タワーマンション
| 最寄駅 | 所在地 | 間取り | 面積 | 築年月 |
|---|---|---|---|---|
有楽町線・要町駅 徒歩 6分 | 東京都豊島区高松1-22-1 | 1 R | 31.2㎡ | 2010年02月 |
この物件の募集は終了しています
南東向きの室内は床暖房や追い炊き、システムキッチン、独立洗面台、シューズインクローゼット等の設備が充実。コンシェルジュサービスが生活をサポートしてくれる2010年築分譲タワーマンションで快適な新生活。
物件写真・間取り
物件概要
| 物件名 | シティタワー池袋ウエストゲート |
|---|
| 交通機関 | 有楽町線・要町駅 徒歩 6分 山手線・池袋駅 徒歩 11分 副都心線・千川駅 徒歩 16分 |
|---|
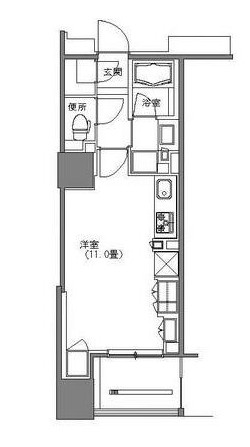
| 間取り詳細 | 11畳 |
|---|
| 建物構造 | RC |
|---|
| 所在階 / 階数 | 4階/34階建 |
|---|
| 主要採光面 | 南東側 |
|---|
| 契約期間 | 2年 |
|---|
| 現況 | 居住中 |
|---|
| 設備・条件 | 分譲タワーマンション/エレベーター複数基/宅配ボックス/フロントサービス/敷地内ごみ置き場/自走式駐車場/駐輪場/東南向き/南面リビング/オートロック/ダブルロックキー/ディンプルキー/防犯カメラ/日勤管理/全居室洋室/システムキッチン/ガスレンジ付/グリル付/都市ガス/バストイレ別/脱衣所/オートバス/追焚機能浴室/浴室乾燥機/温水洗浄便座/洗面所独立/洗面化粧台/24時間換気システム/床暖房/バルコニー/南面バルコニー/フローリング/全居室フローリング/室内洗濯置/クロゼット/シューズボックス/シューズWIC/光ファイバー/TVインターホン/保証人不要/エアコン |
|---|
| 備考 | 分譲タワーマンションをお探しの方はリガール株式会社にお任せください! |
|---|
| 取引態様 | 媒介 |
|---|
| 情報登録日 | 2020年03月26日 |
|---|
| 情報更新日 | 2020年03月26日 |
|---|














