- HOME
- マンションギャラリー一覧
- BLESS西巣鴨
BLESS西巣鴨
【 マンション 】ペット可、L字型ルーフバルコニーが広がる最上階、南西角住戸
| 最寄駅 | 所在地 | 間取り | 面積 | 築年月 |
|---|---|---|---|---|
山手線・大塚駅 徒歩 11分 | 東京都豊島区西巣鴨1-16-17 | 2 LDK | 62.91㎡ | 2015年01月 |
この物件の募集は終了しています
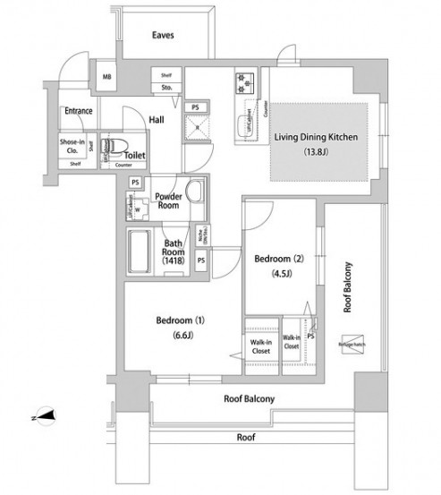
リビングに床暖房が入り、ディスポーザー付カウンターキッチンや追い炊き、独立洗面台、エアコン3基と設備が充実。ウォークインクローゼット2か所、シューズインクローゼットがある収納豊富な最上階、角部屋。
物件写真・間取り
物件概要
| 物件名 | BLESS西巣鴨 |
|---|
| 交通機関 | 山手線・大塚駅 徒歩 11分 三田線・西巣鴨駅 徒歩 10分 埼京線・板橋駅 徒歩 13分 |
|---|
| 間取り詳細 | LDK:13.8畳 洋室:6.6畳、4.5畳 |
|---|
| 建物構造 | RC |
|---|
| 所在階 / 階数 | 9階/9階建 |
|---|
| 主要採光面 | 南側 |
|---|
| 契約期間 | 2年 |
|---|
| 引渡 | 6月中旬 |
|---|
| 現況 | 居住中 |
|---|
| 設備・条件 | 最上階/エレベーター/24時間ゴミ出し可/宅配ボックス/敷地内ごみ置き場/シャッター車庫/駐輪場/南向き/角住戸/南西角住戸/2面採光/3面採光/オートロック/防犯カメラ/セキュリティ会社加入済/全居室洋室/システムキッチン/対面式キッチン/ガスレンジ付/3口以上コンロ/グリル付/ディスポーザー/都市ガス/バストイレ別/オートバス/追焚機能浴室/浴室乾燥機/温水洗浄便座/洗面所独立/洗面化粧台/24時間換気システム/床暖房/バルコニー/ルーフバルコニー/L字型バルコニー/フローリング/全居室フローリング/室内洗濯置/クロゼット/ウォークインクロゼット/ウォークインクロゼット2/シューズボックス/シューズWIC/光ファイバー/TVインターホン/ペット相談/保証人不要/エアコン/エアコン3台/眺望良好/通風良好/陽当り良好 |
|---|
| 備考 | 豊島区のお部屋探しはリガール株式会社にお任せください! |
|---|
| 取引態様 | 媒介 |
|---|
| 情報登録日 | 2020年03月23日 |
|---|
| 情報更新日 | 2020年03月23日 |
|---|



















