- HOME
- マンションギャラリー一覧
- ガーラ・グランディ池袋Ⅱ
ガーラ・グランディ池袋Ⅱ
【 マンション 】池袋駅徒歩10分の分譲賃貸。13階、角部屋の設備が充実の1K
| 最寄駅 | 所在地 | 間取り | 面積 | 築年月 |
|---|---|---|---|---|
山手線・池袋駅 徒歩 10分 | 東京都豊島区東池袋2-45-2 | 1 K | 20.37㎡ | 2015年03月 |
この物件の募集は終了しています
13階、角部屋、南西向きの室内はグリル付きのシステムキッチンや浴室乾燥機、独立洗面化粧台、温水洗浄便座等の設備が充実。池袋駅徒歩10分でバイク置場も敷地内にある交通面に優れた2015年築分譲マンション
物件写真・間取り
物件概要
| 物件名 | ガーラ・グランディ池袋Ⅱ |
|---|
| 交通機関 | 山手線・池袋駅 徒歩 10分 山手線・大塚駅 徒歩 12分 有楽町線・東池袋駅 徒歩 10分 |
|---|
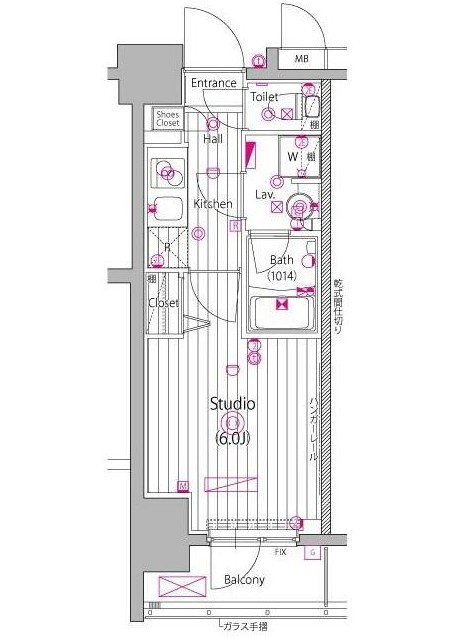
| 間取り詳細 | 6畳 |
|---|
| 建物構造 | RC |
|---|
| 所在階 / 階数 | 3階/14階建 |
|---|
| 主要採光面 | 南西側 |
|---|
| 契約期間 | 2年 |
|---|
| 引渡 | 4月上旬 |
|---|
| 現況 | 居住中 |
|---|
| 設備・条件 | 分譲賃貸/高層階/エレベーター/24時間ゴミ出し可/宅配ボックス/敷地内ごみ置き場/築5年以内/駐輪場/バイク置場/南西向き/角住戸/オートロック/防犯カメラ/全居室洋室/システムキッチン/ガスレンジ付/2口コンロ/グリル付/都市ガス/バストイレ別/浴室乾燥機/温水洗浄便座/洗面所独立/洗面化粧台/24時間換気システム/バルコニー/南面バルコニー/フローリング/全居室フローリング/室内洗濯置/クロゼット/シューズボックス/BS・CS/BS/CS/光ファイバー/TVインターホン/保証人不要/エアコン/眺望良好 |
|---|
| 備考 | 池袋のお一人暮らしはリガール株式会社にお任せください! |
|---|
| 取引態様 | 媒介 |
|---|
| 情報登録日 | 2020年03月17日 |
|---|
| 情報更新日 | 2020年03月17日 |
|---|













