- HOME
- マンションギャラリー一覧
- ROYJENT SUGAMO WEST
ROYJENT SUGAMO WEST
【 マンション 】フリーレント1ヶ月、礼金0ヶ月の新築。ウッドデッキのL字型ルーフバルコニーが広がる開放的な3LDK。メゾネットタイプの最上階はグリル付き3口カウンターキッチンや追い炊き等の設備に優れ、ウォークインクローゼットが2か所と収納も豊富!
| 最寄駅 | 所在地 | 間取り | 面積 | 築年月 |
|---|---|---|---|---|
三田線・巣鴨駅 徒歩 5分 | 東京都豊島区巣鴨3-18 | 3 LDK | 110.98㎡ | 2020年02月 |
この物件の募集は終了しています
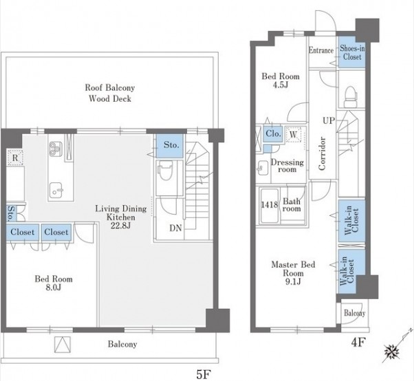
最上階、角部屋、ウッドデッキのルーフバルコニー含む2面バルコニーの風通しに優れた3LDK。礼金0ヶ月、新築の室内はペットの飼育が可能、3口カウンターキッチンやウォークインクローゼット2か所等の充実設備
物件写真・間取り
物件概要
| 物件名 | ROYJENT SUGAMO WEST |
|---|
| 交通機関 | 三田線・巣鴨駅 徒歩 5分 山手線・大塚駅 徒歩 10分 南北線・駒込駅 徒歩 15分 |
|---|
| 間取り詳細 | LDK:22.8畳 洋室:9.1畳、8畳、4.5畳 |
|---|
| 建物構造 | RC |
|---|
| 所在階 / 階数 | 4-5階/5階建 |
|---|
| 主要採光面 | 南東側 |
|---|
| 契約期間 | 2年 |
|---|
| 引渡 | 即入居 |
|---|
| 現況 | 空 |
|---|
| 設備・条件 | 最上階/エレベーター/24時間ゴミ出し可/宅配ボックス/敷地内ごみ置き場/平面駐車場/駐輪場/バイク置場/東南向き/角住戸/3面採光/南面リビング/オートロック/防犯カメラ/日勤管理/LDK20畳以上/メゾネット/システムキッチン/対面式キッチン/3口以上コンロ/グリル付/都市ガス/バストイレ別/オートバス/追焚機能浴室/浴室乾燥機/温水洗浄便座/洗面所独立/24時間換気システム/バルコニー/ルーフバルコニー/南面バルコニー/両面バルコニー/ウッドデッキ/全居室フローリング/室内洗濯置/クロゼット/ウォークインクロゼット/ウォークインクロゼット2/シューズボックス/シューズWIC/光ファイバー/TVインターホン/ペット相談/礼金不要/保証人不要/エアコン/通風良好 |
|---|
| 備考 | 豊島区の新築物件をお探しの方はリガール株式会社にご相談ください! |
|---|
| 取引態様 | 媒介 |
|---|
| 情報登録日 | 2020年03月12日 |
|---|
| 情報更新日 | 2020年03月12日 |
|---|


























