- HOME
- マンションギャラリー一覧
- レアライズ巣鴨
レアライズ巣鴨
【 マンション 】インターネット利用料無料、平置き駐車場やバイク置場が敷地内にあります
| 最寄駅 | 所在地 | 間取り | 面積 | 築年月 |
|---|---|---|---|---|
山手線・巣鴨駅 徒歩 9分 | 東京都豊島区巣鴨5-8-3 | 1 K | 25.68㎡ | 2019年03月 |
この物件の募集は終了しています
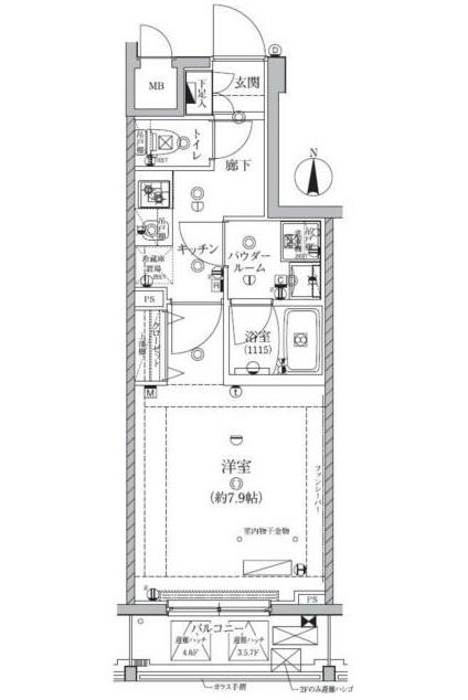
インターネット利用料が無料の南向きの室内は2口ガスのシステムキッチンや浴室乾燥機、温水洗浄便座、独立洗面台等の設備が充実。巣鴨駅が徒歩9分で利用でき、平置駐車場やバイク置場がある交通面に便利な分譲賃貸
物件写真・間取り
物件概要
| 物件名 | レアライズ巣鴨 |
|---|
| 交通機関 | 山手線・巣鴨駅 徒歩 9分 三田線・西巣鴨駅 徒歩 9分 山手線・大塚駅 徒歩 14分 |
|---|
| 間取り詳細 | 7.9畳 |
|---|
| 建物構造 | RC |
|---|
| 所在階 / 階数 | 3階/7階建 |
|---|
| 主要採光面 | 南側 |
|---|
| 契約期間 | 2年 |
|---|
| 引渡 | 4月中旬 |
|---|
| 現況 | 居住中 |
|---|
| 設備・条件 | 分譲賃貸/エレベーター/24時間ゴミ出し可/宅配ボックス/敷地内ごみ置き場/築2年以内/平面駐車場/駐輪場/バイク置場/南向き/オートロック/防犯カメラ/システムキッチン/ガスレンジ付/2口コンロ/都市ガス/バストイレ別/浴室乾燥機/温水洗浄便座/洗面所独立/シャワー付洗面台/24時間換気システム/バルコニー/南面バルコニー/フローリング/室内洗濯置/クロゼット/シューズボックス/BS・CS/ネット使用料不要/TVインターホン/保証人不要/エアコン |
|---|
| 備考 | 豊島区のお一人暮らしはリガール株式会社にお任せください! |
|---|
| 取引態様 | 媒介 |
|---|
| 情報登録日 | 2020年02月22日 |
|---|
| 情報更新日 | 2020年02月22日 |
|---|



















