- HOME
- マンションギャラリー一覧
- ラニ池袋
ラニ池袋
【 マンション 】コンクリート打ち放し、メゾネットタイプのデザイナーズ賃貸
| 最寄駅 | 所在地 | 間取り | 面積 | 築年月 |
|---|---|---|---|---|
山手線・池袋駅 徒歩 11分 | 東京都豊島区上池袋2-30-2 | 2 LDK | 51.87㎡ | 2014年02月 |
この物件の募集は終了しています
南西向き、角部屋の2LDK。コンクリート打ち放しの壁をスポットライト照明がお洒落に照らすメゾネットタイプのデザイナーズマンション。2口ガスのシステムキッチンや独立洗面台、浴室乾燥機等の設備も充実。
物件写真・間取り
物件概要
| 物件名 | ラニ池袋 |
|---|
| 交通機関 | 山手線・池袋駅 徒歩 11分 東武東上線・北池袋駅 徒歩 7分 埼京線・板橋駅 徒歩 15分 |
|---|
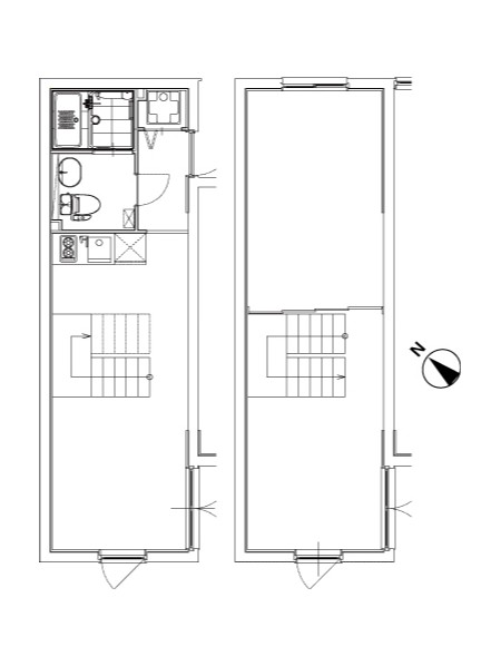
| 間取り詳細 | LDK:8畳 洋室:8畳、6畳 |
|---|
| 建物構造 | RC |
|---|
| 所在階 / 階数 | 3階/4階建 |
|---|
| 主要採光面 | 南西側 |
|---|
| 契約期間 | 2年 |
|---|
| 引渡 | 3月中旬 |
|---|
| 現況 | 居住中 |
|---|
| 設備・条件 | デザイナーズ/外壁コンクリート/内装コンクリート/最上階/宅配ボックス/敷地内ごみ置き場/南西向き/角住戸/オートロック/防犯カメラ/メゾネット/システムキッチン/ガスレンジ付/2口コンロ/都市ガス/バストイレ別/浴室乾燥機/温水洗浄便座/洗面所独立/24時間換気システム/フローリング/全居室フローリング/室内洗濯置/クロゼット/シューズボックス/TVインターホン/保証人不要/エアコン |
|---|
| 備考 | デザイナーズマンションやリノベーションマンション情報が豊富なリガール株式会社で楽しいお部屋探し! |
|---|
| 取引態様 | 媒介 |
|---|
| 情報登録日 | 2020年02月22日 |
|---|
| 情報更新日 | 2020年02月22日 |
|---|























