- HOME
- マンションギャラリー一覧
- パークタワー滝野川
パークタワー滝野川
【 マンション 】ゲストルームやラウンジ、キッズスペースのある分譲タワーマンション
| 最寄駅 | 所在地 | 間取り | 面積 | 築年月 |
|---|---|---|---|---|
三田線・西巣鴨駅 徒歩 3分 | 東京都北区滝野川6-21-1 | 2 LDK | 54.22㎡ | 2013年11月 |
この物件の募集は終了しています
ゲストルームやラウンジのある28階建て分譲タワーマンション。オール電化の室内はリビングに床暖房が入り、ディスポーザーや浄水器、グリル付の3口カウンターキッチンや追い炊き、洗髪洗面化粧台等の設備が充実
物件写真・間取り
物件概要
| 物件名 | パークタワー滝野川 |
|---|
| 交通機関 | 三田線・西巣鴨駅 徒歩 3分 埼京線・板橋駅 徒歩 9分 三田線・新板橋駅 徒歩 8分 |
|---|
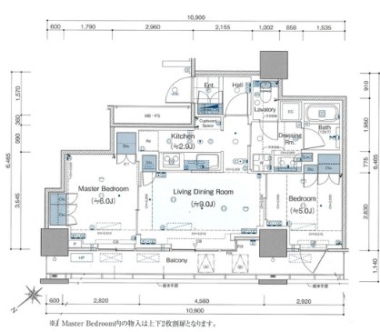
| 間取り詳細 | LDK:11.9畳 洋室:6畳、5畳 |
|---|
| 建物構造 | RC |
|---|
| 所在階 / 階数 | 3階/28階建 |
|---|
| 主要採光面 | 北西側 |
|---|
| 駐車場 | 空有 |
|---|
| 駐車場料金 | 27,000円/月 |
|---|
| 契約期間 | 2年 |
|---|
| 引渡 | 即入居 |
|---|
| 現況 | 空 |
|---|
| 設備・条件 | 分譲タワーマンション/エレベーター複数基/ゲストルーム/キッズルーム/24時間ゴミ出し可/宅配ボックス/敷地内ごみ置き場/シャッター車庫/駐輪場/バイク置場/オートロック/ダブルロックキー/ディンプルキー/防犯カメラ/日勤管理/システムキッチン/対面式キッチン/3口以上コンロ/IHクッキングヒーター/グリル付/浄水器/ディスポーザー/都市ガス/バストイレ別/オートバス/追焚機能浴室/浴室乾燥機/温水洗浄便座/洗面所独立/シャワー付洗面台/24時間換気システム/床暖房/オール電化/バルコニー/ワイドバルコニー/フローリング/全居室フローリング/複層ガラス/室内洗濯置/クロゼット/シューズボックス/BS・CS/CATV/光ファイバー/TVインターホン/即入居可/保証人不要/エアコン/エアコン2台 |
|---|
| 備考 | シェアサイクル使用料無料 1階:ラウンジ、ライブラリースペース 2階:キッズスペース 3階:ゲストルーム(2部屋) 各階ゴミ置場 |
|---|
| 取引態様 | 媒介 |
|---|
| 情報登録日 | 2020年02月21日 |
|---|
| 情報更新日 | 2020年02月21日 |
|---|





























