- HOME
- マンションギャラリー一覧
- SOU高田馬場Ⅱ
SOU高田馬場Ⅱ
【 マンション 】2016年築、コンクリート打ちっぱなしのデザイナーズマンション
| 最寄駅 | 所在地 | 間取り | 面積 | 築年月 |
|---|---|---|---|---|
山手線・高田馬場駅 徒歩 10分 | 東京都新宿区百人町3-4-11 | 1 LDK | 35.08㎡ | 2016年07月 |
この物件の募集は終了しています
最上階、角部屋、複数面採光の1LDKはコンクリート打ちっぱなしの壁をスポットライト照明が照らすお洒落な造り。独立洗面台や3口システムキッチン、浴室乾燥機等の室内設備や宅配ボックス等の共用設備も充実
物件写真・間取り
物件概要
| 物件名 | SOU高田馬場Ⅱ |
|---|
| 交通機関 | 山手線・高田馬場駅 徒歩 10分 中央線・大久保駅 徒歩 10分 山手線・新大久保駅 徒歩 10分 |
|---|
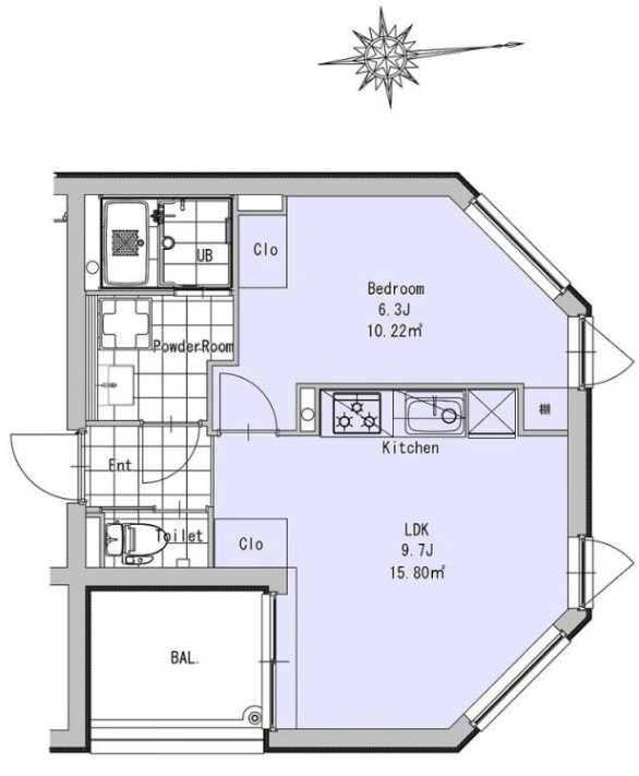
| 間取り詳細 | LDK:9.7畳 洋室:6.3畳 |
|---|
| 建物構造 | RC |
|---|
| 所在階 / 階数 | 5階/5階建 |
|---|
| 主要採光面 | 北側 |
|---|
| 契約期間 | 2年 |
|---|
| 引渡 | 即入居 |
|---|
| 現況 | 空 |
|---|
| 設備・条件 | デザイナーズ/外壁コンクリート/内装コンクリート/高層階/最上階/エレベーター/宅配ボックス/敷地内ごみ置き場/角住戸/2面採光/オートロック/システムキッチン/ガスレンジ付/3口以上コンロ/都市ガス/バストイレ別/浴室乾燥機/温水洗浄便座/洗面所独立/24時間換気システム/バルコニー/フローリング/室内洗濯置/クロゼット/BS・CS/光ファイバー/TVインターホン/即入居可/保証人不要/エアコン/通風良好 |
|---|
| 備考 | デザイナーズマンションをお探しの方はリガール株式会社にお任せください! |
|---|
| 取引態様 | 媒介 |
|---|
| 情報登録日 | 2020年02月15日 |
|---|
| 情報更新日 | 2020年02月15日 |
|---|













