- HOME
- マンションギャラリー一覧
- シャンブル向丘
シャンブル向丘
【 マンション 】SOHO利用可能、カウンターキッチンや追い炊き等の設備が充実
| 最寄駅 | 所在地 | 間取り | 面積 | 築年月 |
|---|---|---|---|---|
南北線・東大前駅 徒歩 4分 | 東京都文京区向丘2-18-9 | 1 LDK | 44.25㎡ | 2006年04月 |
この物件の募集は終了しています
南東向きの1LDKはSOHO利用が可能。ウォークインクローゼットがあり収納豊富な室内はグリル付きの3口ガスカウンターキッチンや追い炊き、浴室乾燥機、独立洗面台、温水洗浄便座等の設備が充実してます。
物件写真・間取り
物件概要
| 物件名 | シャンブル向丘 |
|---|
| 交通機関 | 南北線・東大前駅 徒歩 4分 三田線・白山駅 徒歩 9分 南北線・本駒込駅 徒歩 7分 |
|---|
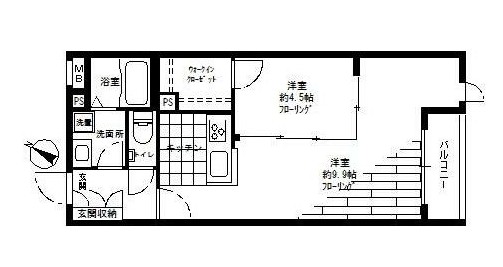
| 間取り詳細 | LDK:9.9畳 洋室:4.5畳 |
|---|
| 建物構造 | 鉄骨造 |
|---|
| 所在階 / 階数 | 2階/3階建 |
|---|
| 主要採光面 | 南東側 |
|---|
| 契約期間 | 2年 |
|---|
| 引渡 | 即入居 |
|---|
| 現況 | 空 |
|---|
| 設備・条件 | 宅配ボックス/駐輪場/東南向き/オートロック/全居室洋室/全居室6畳以上/システムキッチン/対面式キッチン/ガスレンジ付/3口以上コンロ/グリル付/都市ガス/バストイレ別/追焚機能浴室/浴室乾燥機/温水洗浄便座/洗面所独立/24時間換気システム/バルコニー/南面バルコニー/フローリング/全居室フローリング/室内洗濯置/クロゼット/ウォークインクロゼット/シューズボックス/CATV/光ファイバー/TVインターホン/即入居可/事務所相談/エアコン |
|---|
| 備考 | 文京区のお部屋探しはリガール株式会社にお任せください! |
|---|
| 取引態様 | 媒介 |
|---|
| 情報登録日 | 2020年02月13日 |
|---|
| 情報更新日 | 2020年02月13日 |
|---|




















