- HOME
- マンションギャラリー一覧
- ル・リオン西早稲田
ル・リオン西早稲田
【 マンション 】ペットの飼育が可能、カウンターキッチン等の設備が整う最上階
| 最寄駅 | 所在地 | 間取り | 面積 | 築年月 |
|---|---|---|---|---|
副都心線・西早稲田駅 徒歩 10分 | 東京都新宿区西早稲田3-6-6 | 1 LDK | 41.4㎡ | 2011年06月 |
この物件の募集は終了しています
南向き、最上階、角部屋の1LDKは小型犬、猫の飼育が相談可能。ウォークインクローゼットがある収納豊富な室内はグリル付3口カウンターキッチンや浴室乾燥機、三面鏡付独立洗面台、温水洗浄便座等の設備が充実してます!
物件写真・間取り
物件概要
| 物件名 | ル・リオン西早稲田 |
|---|
| 交通機関 | 副都心線・西早稲田駅 徒歩 10分 山手線・高田馬場駅 徒歩 15分 荒川線・早稲田駅 徒歩 2分 |
|---|
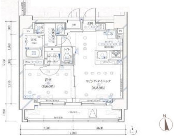
| 間取り詳細 | LDK:8.6畳 洋室:6畳 |
|---|
| 建物構造 | RC |
|---|
| 所在階 / 階数 | 11階/11階建 |
|---|
| 主要採光面 | 南側 |
|---|
| 駐車場料金 | 25,000円 |
|---|
| 契約期間 | 2年 |
|---|
| 引渡 | 即入居 |
|---|
| 現況 | 空 |
|---|
| 設備・条件 | 分譲賃貸マンション/最上階/エレベーター/24時間ゴミ出し可/宅配ボックス/敷地内ごみ置き場/駐輪場/南向き/角住戸/南面リビング/オートロック/ダブルロックキー/ディンプルキー/防犯カメラ/全居室6畳以上/システムキッチン/対面式キッチン/ガスレンジ付/3口以上コンロ/グリル付/都市ガス/バストイレ別/浴室乾燥機/温水洗浄便座/洗面所独立/三面鏡付洗面化粧台/24時間換気システム/バルコニー/南面バルコニー/フローリング/全居室フローリング/室内洗濯置/クロゼット/ウォークインクロゼット/シューズボックス/光ファイバー/TVインターホン/即入居可/ペット相談/保証人不要/エアコン/眺望良好 |
|---|
| 備考 | 分譲マンションをお探しの方はリガール株式会社にお任せください! |
|---|
| 取引態様 | 媒介 |
|---|
| 情報登録日 | 2020年02月04日 |
|---|
| 情報更新日 | 2020年02月04日 |
|---|




















