- HOME
- マンションギャラリー一覧
- シャイニング
シャイニング
【 マンション 】インターネット利用料無料、SCOMセキュリティ無料装備
| 最寄駅 | 所在地 | 間取り | 面積 | 築年月 |
|---|---|---|---|---|
東西線・早稲田駅 徒歩 11分 | 東京都新宿区西早稲田3-5-4 | 1 R | 26.72㎡ | 2015年08月 |
この物件の募集は終了しています
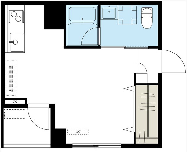
南西向き、角部屋の室内は独立洗面台やシステムキッチン、浴室乾燥機等の設備が整い、インターネット利用料が無料。SECOMセキュリティが入っており女性の一人暮らしも安心。敷地内にはバイク置場があります。
物件写真・間取り
物件概要
| 物件名 | シャイニング |
|---|
| 交通機関 | 東西線・早稲田駅 徒歩 11分 副都心線・西早稲田駅 徒歩 11分 荒川線・面影橋駅 徒歩 2分 |
|---|
| 間取り詳細 | 10.6畳 |
|---|
| 建物構造 | RC |
|---|
| 所在階 / 階数 | 5階/9階建 |
|---|
| 主要採光面 | 南西側 |
|---|
| 契約期間 | 2年 |
|---|
| 引渡 | 5月中旬 |
|---|
| 現況 | 居住中 |
|---|
| 設備・条件 | エレベーター/宅配ボックス/敷地内ごみ置き場/駐輪場/バイク置場/南西向き/角住戸/オートロック/防犯カメラ/セキュリティ会社加入済/全居室洋室/システムキッチン/ガスレンジ付/2口コンロ/都市ガス/バストイレ別/浴室乾燥機/温水洗浄便座/洗面所独立/洗面化粧台/24時間換気システム/バルコニー/南面バルコニー/フローリング/全居室フローリング/室内洗濯置/クロゼット/シューズボックス/BS/ネット使用料不要/TVインターホン/保証人不要/エアコン/眺望良好 |
|---|
| 備考 | 新宿区・文京区・豊島区周辺のお一人暮らしはリガール株式会社にお任せください! |
|---|
| 取引態様 | 媒介 |
|---|
| 情報登録日 | 2020年01月27日 |
|---|
| 情報更新日 | 2020年01月27日 |
|---|














