- HOME
- マンションギャラリー一覧
- ステージグランデ早稲田
ステージグランデ早稲田
【 マンション 】インターネット利用料無料、システムキッチン等の設備が充実の分譲賃貸マンション
| 最寄駅 | 所在地 | 間取り | 面積 | 築年月 |
|---|---|---|---|---|
東西線・早稲田駅 徒歩 7分 | 東京都新宿区早稲田鶴巻町302-5 | 1 K | 25.34㎡ | 2016年05月 |
この物件の募集は終了しています
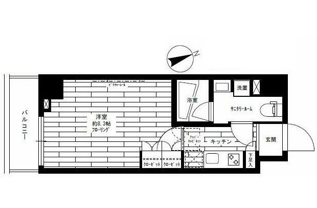
インターネットが無料で利用可能な南西向き、8.3畳の洋室が広がる1Kは2口ガスのシステムキッチンや浴室乾燥機、独立洗面台、温水洗浄便座等の水回りの設備に優れ、アッパーキャビネットもあり収納が豊富。
物件写真・間取り
物件概要
| 物件名 | ステージグランデ早稲田 |
|---|
| 交通機関 | 東西線・早稲田駅 徒歩 7分 有楽町線・江戸川橋駅 徒歩 9分 荒川線・早稲田駅 徒歩 8分 |
|---|
| 間取り詳細 | 8.3畳 |
|---|
| 建物構造 | RC |
|---|
| 所在階 / 階数 | 5階/9階建 |
|---|
| 主要採光面 | 南側 |
|---|
| 契約期間 | 2年 |
|---|
| 引渡 | 即入居 |
|---|
| 現況 | 空 |
|---|
| 設備・条件 | 分譲賃貸/高層階/エレベーター/24時間ゴミ出し可/宅配ボックス/敷地内ごみ置き場/駐輪場/バイク置場/南西向き/オートロック/カードキー/防犯カメラ/システムキッチン/ガスレンジ付/2口コンロ/都市ガス/バストイレ別/浴室乾燥機/温水洗浄便座/洗面所独立/洗面化粧台/24時間換気システム/バルコニー/全居室フローリング/室内洗濯置/クロゼット/シューズボックス/BS・CS/ネット使用料不要/TVインターホン/マルチメディアコンセント/即入居可/保証人不要/エアコン |
|---|
| 備考 | 新宿区・文京区・豊島区周辺区域のお部屋探しはリガール株式会社! |
|---|
| 取引態様 | 媒介 |
|---|
| 情報登録日 | 2020年01月20日 |
|---|
| 情報更新日 | 2020年01月20日 |
|---|




















