- HOME
- マンションギャラリー一覧
- ブリリアタワー池袋
ブリリアタワー池袋
【 マンション 】ゲストルームやパーティールーム、フィットネスルーム、コンシェルジュサービス等のタワーマンションならではの設備が整い、床暖房や食洗器、ディスポーザー、浄水器、玄関横のトランクルーム等室内設備も充実の分譲タワーマンション!
| 最寄駅 | 所在地 | 間取り | 面積 | 築年月 |
|---|---|---|---|---|
有楽町線・東池袋駅 徒歩 1分 | 東京都豊島区南池袋2-45-2 | 3 LDK | 78.06㎡ | 2015年03月 |
この物件の募集は終了しています
・屋上スカイテラス ・コンシェルジュサービス ・11F:コンシェルジュカウンター ・11F:フィットネスルーム ・11F:パーティールーム ・11F:ヒーリングルーム ・11F:エコライブラリー ・11F:ゲストルーム ・11F:スタディールーム ・11F:キッズルーム ・11F:メインラウンジ ・13F:ゲストルーム ・31F:ビューラウンジ
物件写真・間取り
物件概要
| 物件名 | ブリリアタワー池袋 |
|---|
| 交通機関 | 有楽町線・東池袋駅 徒歩 1分 山手線・池袋駅 徒歩 8分 副都心線・雑司が谷駅 徒歩 10分 |
|---|
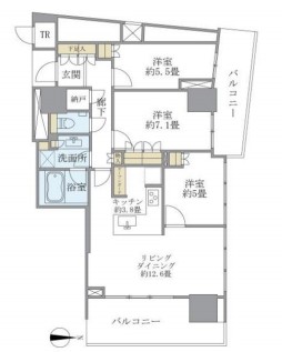
| 間取り詳細 | LDK:16.4畳 洋室:7.1畳、5.5畳、5畳 |
|---|
| 建物構造 | SRC |
|---|
| 所在階 / 階数 | 34階/49階建 |
|---|
| 主要採光面 | 東側 |
|---|
| 契約期間 | 3年(定期借家) |
|---|
| 引渡 | 2月中旬 |
|---|
| 現況 | 居住中 |
|---|
| 設備・条件 | 分譲タワーマンション/高層階/エレベーター複数基/ゲストルーム/キッズルーム/屋上/24時間ゴミ出し可/宅配ボックス/フロントサービス/敷地内ごみ置き場/築5年以内/電動シャッター車庫/平面駐車場/駐輪場/バイク置場/角住戸/2面採光/オートロック/ダブルロックキー/ディンプルキー/防犯カメラ/24時間有人管理/システムキッチン/対面式キッチン/L字型キッチン/ガスレンジ付/3口以上コンロ/グリル付/食器洗乾燥機/浄水器/ディスポーザー/バストイレ別/オートバス/追焚機能浴室/浴室乾燥機/ミストサウナ/温水洗浄便座/洗面所独立/三面鏡付洗面化粧台/シャワー付洗面台/床暖房/バルコニー/2面バルコニー/室内洗濯置/クロゼット/シューズボックス/トランクルーム/BS・CS/光ファイバー/TVインターホン/エアコン/眺望良好 |
|---|
| 備考 | 一都三県のタワーマンションはリガール株式会社にお任せください! |
|---|
| 取引態様 | 媒介 |
|---|
| 情報登録日 | 2020年01月18日 |
|---|
| 情報更新日 | 2020年01月18日 |
|---|


















