- HOME
- マンションギャラリー一覧
- シティハウス市谷薬王寺
シティハウス市谷薬王寺
【 マンション 】床暖房や3口カウンターキッチン、追い炊き等設備が充実の分譲マンション
| 最寄駅 | 所在地 | 間取り | 面積 | 築年月 |
|---|---|---|---|---|
大江戸線・牛込柳町駅 徒歩 4分 | 東京都新宿区市谷薬王寺町4 | 1 LDK | 45.14㎡ | 2012年04月 |
この物件の募集は終了しています
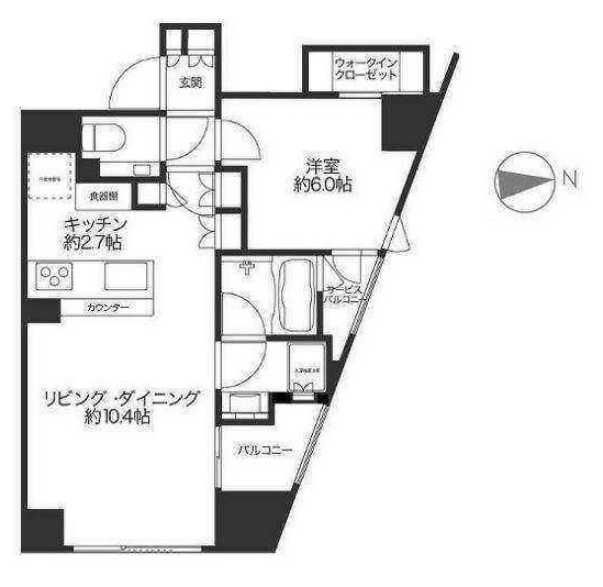
角部屋、二面採光の風通しに優れた1LDKはリビングに床暖房が入り、グリル付3口カウンターキッチンや追い炊き、浴室乾燥機、温水洗浄便座、三面鏡付洗髪洗面化粧台、ウォークインクローゼット等の設備が充実
物件写真・間取り
物件概要
| 物件名 | シティハウス市谷薬王寺 |
|---|
| 交通機関 | 大江戸線・牛込柳町駅 徒歩 4分 都営新宿線・曙橋駅 徒歩 9分 大江戸線・若松河田駅 徒歩 12分 |
|---|
| 間取り詳細 | LDK:13.1畳 洋室:6畳 |
|---|
| 建物構造 | RC |
|---|
| 所在階 / 階数 | 10階/14階建 |
|---|
| 主要採光面 | 東側 |
|---|
| 契約期間 | 2年 |
|---|
| 引渡 | 即入居 |
|---|
| 現況 | 空 |
|---|
| 設備・条件 | 分譲賃貸/エレベーター/24時間ゴミ出し可/宅配ボックス/敷地内ごみ置き場/駐輪場/角住戸/2面採光/オートロック/ダブルロックキー/ディンプルキー/防犯カメラ/システムキッチン/対面式キッチン/ガスレンジ付/3口以上コンロ/グリル付/都市ガス/バストイレ別/オートバス/追焚機能浴室/浴室乾燥機/温水洗浄便座/洗面所独立/三面鏡付洗面化粧台/24時間換気システム/床暖房/バルコニー/フローリング/全居室フローリング/室内洗濯置/クロゼット/ウォークインクロゼット/シューズボックス/BS・CS/CATV/光ファイバー/TVインターホン/即入居可/エアコン/通風良好 |
|---|
| 備考 | 分譲マンションをお探しの方はリガール株式会社にお任せください! |
|---|
| 取引態様 | 媒介 |
|---|
| 情報登録日 | 2020年01月08日 |
|---|
| 情報更新日 | 2020年01月08日 |
|---|




















