- HOME
- マンションギャラリー一覧
- フェニックス新宿夏目坂
フェニックス新宿夏目坂
【 マンション 】自転車が入るトランクルームのついたペット可分譲マンション
| 最寄駅 | 所在地 | 間取り | 面積 | 築年月 |
|---|---|---|---|---|
大江戸線・若松河田駅 徒歩 4分 | 東京都新宿区原町3-33-2 | 1 K | 31.85㎡ | 2012年08月 |
この物件の募集は終了しています
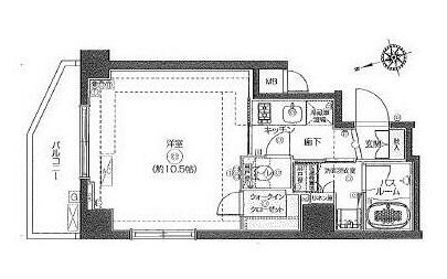
9階、二面採光の風通しに優れた角部屋はペットの飼育が可能。システムキッチンや追い炊き、浴室乾燥機、洗髪洗面化粧台等の設備に優れ、ウォークインクローゼットとトランクルームがあり収納が豊富です。
物件写真・間取り
物件概要
| 物件名 | フェニックス新宿夏目坂 |
|---|
| 交通機関 | 大江戸線・若松河田駅 徒歩 4分 大江戸線・牛込柳町駅 徒歩 5分 東西線・早稲田駅 徒歩 10分 |
|---|
| 間取り詳細 | 10.5畳 |
|---|
| 建物構造 | RC |
|---|
| 所在階 / 階数 | 9階/10階建 |
|---|
| 主要採光面 | 北側 |
|---|
| 契約期間 | 2年 |
|---|
| 引渡 | 1月下旬 |
|---|
| 現況 | 居住中 |
|---|
| 設備・条件 | 分譲賃貸/高層階/エレベーター/24時間ゴミ出し可/宅配ボックス/敷地内ごみ置き場/駐輪場/角住戸/2面採光/オートロック/防犯カメラ/システムキッチン/ガスレンジ付/2口コンロ/都市ガス/バストイレ別/オートバス/追焚機能浴室/浴室乾燥機/温水洗浄便座/洗面所独立/シャワー付洗面台/24時間換気システム/バルコニー/フローリング/室内洗濯置/クロゼット/ウォークインクロゼット/シューズボックス/トランクルーム/光ファイバー/TVインターホン/ペット相談/保証人不要/エアコン/通風良好 |
|---|
| 備考 | ペット可マンションをお探しの方はリガール株式会社にお任せください! |
|---|
| 取引態様 | 媒介 |
|---|
| 情報登録日 | 2020年01月04日 |
|---|
| 情報更新日 | 2020年01月04日 |
|---|


















