- HOME
- マンションギャラリー一覧
- 駒込貸家
駒込貸家
【 一戸建て 】駐車場付2015年築戸建て。8.1畳の納戸がある2SLDK
| 最寄駅 | 所在地 | 間取り | 面積 | 築年月 |
|---|---|---|---|---|
山手線・駒込駅 徒歩 8分 | 東京都北区田端4-8-7 | 3 LDK | 110.62㎡ | 2015年12月 |
この物件の募集は終了しています
| 駐車場付の戸建て。8.1畳の三面採光の納戸がある2SLDKはウォークインクローゼットが3か所あり収納豊富。IH3口のアイランドキッチンや追い炊きオートバス、浴室乾燥機、シャンプードレッサー等の充実設備 |
物件写真・間取り
物件概要
| 物件名 | 駒込貸家 |
|---|
| 交通機関 | 山手線・駒込駅 徒歩 8分 京浜東北線・田端駅 徒歩 9分 千代田線・西日暮里駅 徒歩 19分 |
|---|
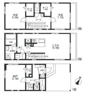
| 間取り詳細 | LDK:16.9畳 洋室:8.2畳、8.1畳、7.7畳 |
|---|
| 建物構造 | 軽量鉄骨 |
|---|
| 所在階 / 階数 | 3階建 |
|---|
| 主要採光面 | 東側 |
|---|
| 駐車場 | 付 |
|---|
| 駐車場料金 | 無料 |
|---|
| 契約期間 | 2年 |
|---|
| 引渡 | 1月下旬 |
|---|
| 現況 | 居住中 |
|---|
| 設備・条件 | 平面駐車場/駐車場1台無料/2面採光/3面採光/LDK15畳以上/システムキッチン/アイランドキッチン/3口以上コンロ/IHクッキングヒーター/グリル付/都市ガス/バストイレ別/オートバス/追焚機能浴室/浴室乾燥機/温水洗浄便座/洗面所独立/シャワー付洗面台/24時間換気システム/バルコニー/フローリング/全居室フローリング/複層ガラス/クロゼット/ウォークインクロゼット/ウォークインクロゼット2/シューズボックス/BS/TVインターホン/保証人不要/エアコン/通風良好 |
|---|
| 備考 | 賃貸戸建てをお探しの方はリガールにお任せください! |
|---|
| 取引態様 | 媒介 |
|---|
| 情報登録日 | 2019年12月14日 |
|---|
| 情報更新日 | 2019年12月14日 |
|---|






