- HOME
- マンションギャラリー一覧
- 千川1丁目貸家
千川1丁目貸家
【 一戸建て 】中型犬の飼育が可能、駐車場付の2017年築戸建て
| 最寄駅 | 所在地 | 間取り | 面積 | 築年月 |
|---|---|---|---|---|
有楽町線・千川駅 徒歩 5分 | 東京都豊島区千川1-20-7 | 2 DK | 73.42㎡ | 2017年07月 |
この物件の募集は終了しています
駐車場付の戸建てはペットの飼育が3匹迄可能。屋上に手洗い付のルーフバルコニーが広がり、リビングの床暖房や食洗器、浄水器付カウンターキッチン、追い炊き、独立洗面化粧台、トイレが2か所と設備が充実してます
物件写真・間取り
物件概要
| 物件名 | 千川1丁目貸家 |
|---|
| 交通機関 | 有楽町線・千川駅 徒歩 5分 有楽町線・要町駅 徒歩 14分 西武池袋線・東長崎駅 徒歩 21分 |
|---|
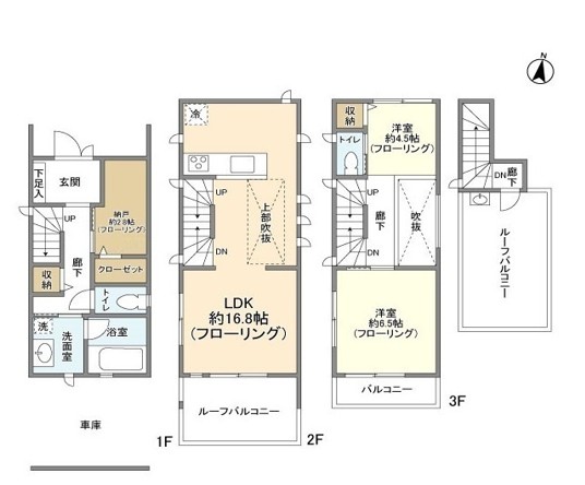
| 間取り詳細 | LDK:16.8畳 洋室:6.5畳、4.5畳 |
|---|
| 建物構造 | 木造 |
|---|
| 所在階 / 階数 | 3階建 |
|---|
| 主要採光面 | 南側 |
|---|
| 駐車場 | 付 |
|---|
| 駐車場料金 | 無料 |
|---|
| 契約期間 | 2年 |
|---|
| 引渡 | 1月上旬 |
|---|
| 現況 | 居住中 |
|---|
| 設備・条件 | 平面駐車場/駐車場1台無料/南向き/ダブルロックキー/ディンプルキー/2階リビング/システムキッチン/対面式キッチン/3口以上コンロ/グリル付/食器洗乾燥機/浄水器/都市ガス/バストイレ別/オートバス/追焚機能浴室/浴室乾燥機/浴室に窓/トイレ2ヶ所/温水洗浄便座/洗面所独立/洗面化粧台/24時間換気システム/床暖房/バルコニー/ルーフバルコニー/フローリング/全居室フローリング/室内洗濯置/クロゼット/納戸/TVインターホン/ペット相談/保証人不要/エアコン2台 |
|---|
| 備考 | 戸建てをお探しの方はリガール株式会社にお任せください! |
|---|
| 取引態様 | 媒介 |
|---|
| 情報登録日 | 2019年12月08日 |
|---|
| 情報更新日 | 2019年12月08日 |
|---|







