- HOME
- マンションギャラリー一覧
- ANNEX KIKUFUJI
ANNEX KIKUFUJI
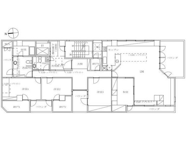
【 マンション 】最上階ワンフロア、床暖房や食洗器等の設備が充実した4SLDK
| 最寄駅 | 所在地 | 間取り | 面積 | 築年月 |
|---|---|---|---|---|
大江戸線・本郷三丁目駅 徒歩 7分 | 東京都文京区本郷5-5-5 | 4 LDK | 145.21㎡ | 2004年02月 |
この物件の募集は終了しています
| 最上階、ワンフロア、ルーフバルコニー含む三面バルコニーの4SLDK。床暖房や食洗器、グリル付きのコの字型カウンターキッチン、追い炊きフルオートバス、独立洗面台、トイレが2か所、納戸3か所と設備が充実 |
物件写真・間取り
物件概要
| 物件名 | ANNEX KIKUFUJI |
|---|
| 交通機関 | 大江戸線・本郷三丁目駅 徒歩 7分 三田線・春日駅 徒歩 10分 丸の内線・後楽園駅 徒歩 11分 |
|---|
| 間取り詳細 | LDK:28畳 |
|---|
| 建物構造 | RC |
|---|
| 所在階 / 階数 | 3階/3階建 |
|---|
| 主要採光面 | 南側 |
|---|
| 駐車場 | 1台無料 |
|---|
| 駐車場料金 | 無料 |
|---|
| 契約期間 | 2年 |
|---|
| 引渡 | 1月下旬 |
|---|
| 現況 | 空 |
|---|
| 設備・条件 | 1フロア1住戸/最上階/エレベーター/宅配ボックス/敷地内ごみ置き場/平面駐車場/駐輪場/駐車場1台無料/南向き/角住戸/2面採光/3面採光/南面リビング/オートロック/防犯カメラ/LDK25畳以上/システムキッチン/対面式キッチン/U字型キッチン/ガスレンジ付/3口以上コンロ/グリル付/食器洗乾燥機/都市ガス/バストイレ別/オートバス/追焚機能浴室/浴室乾燥機/トイレ2ヶ所/温水洗浄便座/タンクレストイレ/洗面所独立/洗面化粧台/24時間換気システム/床暖房/バルコニー/ルーフバルコニー/3面バルコニー/フローリング/室内洗濯置/クロゼット/ウォークインクロゼット/シューズボックス/納戸/BS・CS/CATV/光ファイバー/TVインターホン/礼金不要/保証人不要/エアコン/エアコン全室/通風良好/陽当り良好 |
|---|
| 備考 | 高級物件情報が豊富なリガール株式会社 |
|---|
| 取引態様 | 媒介 |
|---|
| 情報登録日 | 2019年12月03日 |
|---|
| 情報更新日 | 2019年12月03日 |
|---|




















