- HOME
- マンションギャラリー一覧
- プラハテラス東大前
プラハテラス東大前
【 一戸建て 】食洗器付カウンターキッチンや追炊き等の設備に優れたテラスハウス
| 最寄駅 | 所在地 | 間取り | 面積 | 築年月 |
|---|---|---|---|---|
南北線・東大前駅 徒歩 5分 | 東京都文京区向丘2-17-16 | 3 LDK | 74.08㎡ | 2016年06月 |
この物件の募集は終了しています
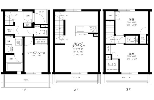
南西向き、ウォークインクローゼットがあり収納豊富な3LDK。食洗器、グリル付3口カウンターキッチンや追炊き、浴室乾燥機、独立洗面台、温水洗浄便座、全室エアコンと設備が充実。宅配ボックス等の共用部も豊富
物件写真・間取り
物件概要
| 物件名 | プラハテラス東大前 |
|---|
| 交通機関 | 南北線・東大前駅 徒歩 5分 南北線・本駒込駅 徒歩 7分 三田線・白山駅 徒歩 9分 |
|---|
| 間取り詳細 | LDK:13.3畳 洋室:5.8畳、4.5畳、4.3畳 |
|---|
| 建物構造 | 軽量鉄骨 |
|---|
| 所在階 / 階数 | 1-3階/3階建 |
|---|
| 主要採光面 | 南西側 |
|---|
| 契約期間 | 2年 |
|---|
| 引渡 | 即入居 |
|---|
| 現況 | 空 |
|---|
| 設備・条件 | 分譲賃貸/宅配ボックス/駐輪場/南西向き/セキュリティ会社加入済/LDK12畳以上/2階リビング/メゾネット/システムキッチン/ガスレンジ付/3口以上コンロ/グリル付/食器洗乾燥機/バストイレ別/オートバス/追焚機能浴室/浴室乾燥機/温水洗浄便座/洗面所独立/24時間換気システム/バルコニー/南面バルコニー/テラス/全居室フローリング/室内洗濯置/クロゼット/ウォークインクロゼット/シューズボックス/TVインターホン/即入居可/保証人不要/エアコン/エアコン4台/エアコン全室 |
|---|
| 備考 | テラスハウスや戸建てをお探しの方はリガール株式会社にお任せください! |
|---|
| 取引態様 | 媒介 |
|---|
| 情報登録日 | 2019年12月02日 |
|---|
| 情報更新日 | 2019年12月02日 |
|---|




















